Bilocale via Luigi Einaudi, Centro, Correzzana

€ 315.000
2
96 m²
1
T
No
Balcone
Terrazzo
Cantina

Nota

Annuncio aggiornato il 14/11/2025
Descrizione

riferimento: 315c

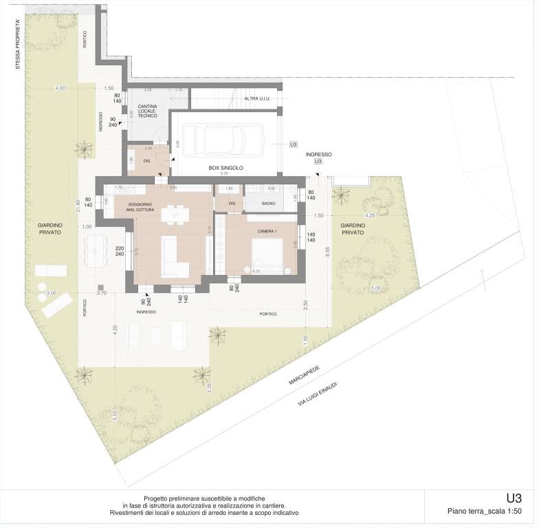
Nuova costruzione in classe energetica A4! CORREZZANA: Se cerchi soluzioni abitative dalla massima efficienza energetica servite e immerse nel verde, proponiamo in esclusiva tre unità immobiliari di design, luminose, comode con ampi spazi esterni anche coperti e attrezzati .Le soluzioni sono l'ideale per chi cerca un'abitazione elegante, raffinata, funzionale e indipendente. Qui proponiamo appartamento di due locali con ingresso indipendente composto da soggiorno con cucina a vista, disimpegno, bagno e camera matrimoniale, il tutto circondato da ampio giardino. Riscaldamento a pompa di calore a pavimento, pannelli fotovoltaici, climatizzazione, predisposizione estrattori per cambio aria, serramenti a bassa trasmittanza, sistema oscurante in tapparelle automatizzate e a listoni orientabili, domotica di base, videocitofono e impianto di allarme interno ed esterno. Possibilità di personalizzare finiture interne ed esterne compreso realizzazione di piscina. Consegna maggio 2026! € 315.000,00 oltre box con basculante motorizzata e posto auto di proprietà ! Inviaci un messaggio per richiedere maggiori informazioni o contattaci al n. 039.6980312 Mediando Immobiliare associata F.I.M.A.A. (Federazione Italiana Mediatori Agenti d’Affari) è uno studio di intermediazione immobiliare che, grazie a figure professionali qualificate, offre una vasta gamma di servizi e consulenze tecniche. Rivolgendosi alla nostra agenzia immobiliare il cliente può contare su tutta l'attenzione e la professionalità maturate negli anni. Seguiamo infatti ogni fase riguardante la compravendita e la locazione immobiliare, nonché quella commerciale, mettendo a disposizione tutta la nostra assistenza. Il nostro impegno, la professionalità e la consapevolezza di avere come oggetto del nostro lavoro uno dei beni più importanti per la vita, ci ha imposto un rigoroso metodo di operare basato su regole e principi ferrei. Alcuni dei nostri servizi: Valutazione immobili residenziali e commerciali. Compravendite. Stesura contratti di locazione. Locazioni. Compilazione modelli F24 elide per registrazione contratti locazione. Registrazione telematica dei contratti di locazione, proroghe, cessioni e risoluzioni. Assistenza del cliente fino al rogito notarile. Consulenze. Certificati energetici.
Se vuoi saperne di più, puoi parlare con Erika Biffi.

Di solito risponde entro 1 giorno

Caratteristiche
Tipologia
Appartamento | Intera proprietà | Immobile di lusso
Contratto
Vendita
Piano
Piano terra
Piani edificio
1
Ascensore
No
Superficie
96 m²
Locali
2
Camere da letto
1
Cucina
Cucina a vista
Bagni
1
Arredato
No
Balcone
Terrazzo
Box, posti auto
1 in box privato/box in garage, 1 in parcheggio/garage comune
Riscaldamento
Autonomo, a pavimento, alimentato a pompa di calore
Climatizzazione
Autonomo, freddo/caldo
Altre caratteristiche
  • Esposizione doppia
  • Fibra ottica
  • Impianto di allarme
  • Infissi esterni in triplo vetro / PVC
  • Mansarda
  • Porta blindata
  • Impianto tv con parabola satellitare
  • VideoCitofono
Dettaglio superficie

Abitazione

Piano
Piano terra
Superficie
70,0 m²
Coefficiente
100%
Tipo superficie
Principale
Sup. commerciale
70,0 m²

Giardino

Piano
Piano terra
Superficie
228,0 m²
Coefficiente
10%
Tipo superficie
Principale
Sup. commerciale
22,8 m²

Cantina

Piano
Piano terra
Superficie
11,5 m²
Coefficiente
30%
Tipo superficie
Principale
Sup. commerciale
3,5 m²
Informazioni sul prezzo
Prezzo
€ 315.000
Prezzo al m²
3.281 €/m²
New
Efficienza energetica

Consumo di energia

≥ 3,51 kWh/m² annoA4

Planimetria
CORREZZANA_pianta U3_PT new 1
Scopri ogni angolo dell'immobile
+6
Mutuo
%
Durata del mutuo

Rata da € 936 al mese

€ 94.500 (30%)

€ 220.500 (70%)

Vuoi sapere che mutuo puoi richiedere?

Opzioni aggiuntive

Contatta l'inserzionista

Oppure