Appartamento all'asta via Fratte, 6719, Sant'Elpidio a Mare

da € 100.984,00
3
387 m²
T

Nota

Annuncio aggiornato il 07/05/2025
Descrizione

riferimento: 2515119

Alloggio con cortile (sub 58) garage e mobilio

Quest’immobile viene venduto tramite asta online.

Appartamento sito a Sant’Elpidio a Mare (FM), frazione Bivio Cascinare, via Fratte 6719. Il contesto è periferico e poco trafficato. La zona è pianeggiante, urbanizzata e caratterizzata da edifici residenziali isolati, strutture rurali, capannoni e terreni. L’area è ben collegata al vicino mare, ai suoi centri turistici balneari e alla autostrada A14 (casello Civitanova Marche – Macerata). L’unità è parte di un grande complesso residenziale in tre palazzine realizzato nel 2007. Strutture portanti in cemento armato. Agibilità rilasciata.

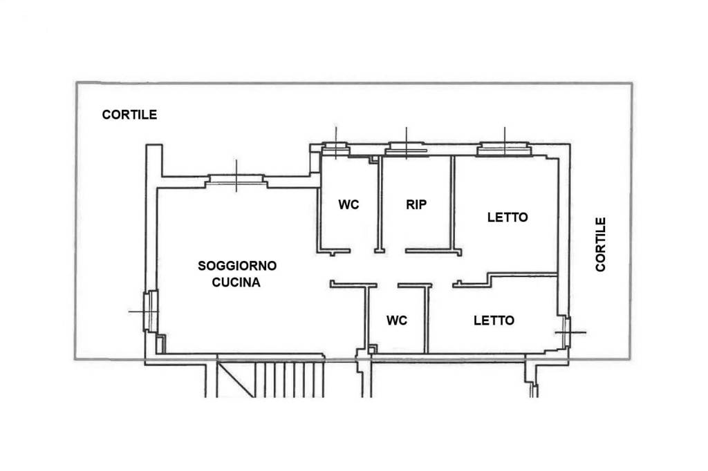
Appartamento (sub 58) al piano terra, con accesso da vano scala condominiale con ascensore.

Composto da soggiorno, angolo cottura, due bagni, due camere, ripostiglio e cortile privato.

Incluso un box auto nella autorimessa interrata servita da corsello, rampa e vano scala.

Finiture standard complete. Impianti sottotraccia. Climatizzazione autonoma.

Progetto conforme. Per maggiori dettagli consultare la perizia.

Condizioni buone. Mobilio inventariato incluso nella vendita.

Superficie complessiva: 387 mq circa

Immobile descritto nella perizia qui allegata come LOTTO 44+69

Piena proprietà di:

CF: Foglio 7 – Particella 107 – Subalterno 58 – A/2

CF: Foglio 7 – Particella 107 – Subalterno 81 – C/6

Mobilio inventariato (EX LOTTO 2): cucina componibile, tavolo legno e 4 sedie, letto e armadio, mobile bagno bianco.

Quimmo.it: iniziativa tech del Gruppo illimity specializzata nell’intermediazione digitale di beni immobili provenienti da tribunali, nuovi sviluppi immobiliari, financial institutions e libero mercato.
Da oltre 10 anni Quimmo.it è il portale specializzato nella compravendita di immobili tramite asta giudiziaria. Il portale è infatti iscritto nel Registro Gestori della vendita telematica e nell’elenco dei siti web autorizzati allo svolgimento della pubblicità legale. Con Quimmo puoi scegliere tra migliaia di immobili di ogni tipo e partecipare alle aste online per acquistare la soluzione più adatta alle tue esigenze.
Affidati all’esperienza decennale dei nostri esperti e richiedi l’assistenza gratuita per la presentazione e compilazione dell’offerta.
Contattaci subito.
Caratteristiche
Tipologia
Appartamento | Intera proprietà
Contratto
Vendita
Piano
Piano terra
Piani edificio
4
Ascensore
Superficie
387 m²
Locali
3
Camere da letto
2
Balcone
No
Terrazzo
No
Box, posti auto
1 in box privato/box in garage
Riscaldamento
Autonomo, alimentato a metano
Dati catastali
Foglio 7 - Particella 107 - Subalterno 58
Efficienza energetica

Consumo di energia

C

Per partecipare
Spesa prenota debito
No
Contributo non dovuto
No
Luogo vendita
Via Fratte, N. 6719
Note
Per maggiori informazioni contattaci o visita il sito QUIMMO
Dettagli lotto
Numero immobili
1
Dati procedura
Aggiornato il
21/11/2025
Numero procedura
15/2012
Procedura
Concordato Preventivo
Tribunale
Macerata
Documenti ufficiali
Planimetria
Scopri ogni angolo dell'immobile
+7
Mutuo
%
Durata del mutuo

Rata da € 300 al mese

€ 30.295,2 (31%)

€ 70.688,8 (69%)

Vuoi sapere che mutuo puoi richiedere?

Opzioni aggiuntive

Contatta l'inserzionista