map icon

Garage - Box in Vendita

Villafranca di VeronaVIA BRIGATE ALPINE
€ 21.000
22 m²
S

Nota

Annuncio aggiornato il 31/07/2025
Descrizione

riferimento: 20.

Box - Garage in vendita a Villafranca di Verona, Dossobuono

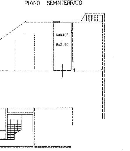
GARAGE DOPPIO LIBERO SUBITO. Dossobuono. Garage doppio finestrato di 22 mq con altezza 2.90mt, larghezza 2.80mt e lunghezza 7.40mt

ATTENZIONE: informiamo che è stata posta la massima cura per garantire la correttezza dei contenuti della presentazione, in ogni caso essa non ha alcun valore in sede contrattuale.
Se vuoi saperne di più, puoi parlare con William Minardi.
Caratteristiche
Contratto
Vendita
Tipologia
Garage - Box | Box indipendente
Superficie
22 m²
Piano
Seminterrato
Disponibilità
Libero
Altre caratteristiche
  • Accessibilità 24h
Informazioni sul prezzo
Prezzo
€ 21.000
Prezzo al m²
955 €/m²
New
Dettaglio dei costi
Spese condominio
€ 5/mese
Planimetria
PLN
Scopri ogni angolo dell'immobile
+6
Opzioni aggiuntive

Contatta l'inserzionista

Oppure