Capannone in Affitto

€ 800/mese
3
200 m²

Nota

Zenso

Prestiti online e veloci

Confronta le offerte in 1 minuto

Annuncio aggiornato il 07/07/2025
Descrizione

riferimento: A 70

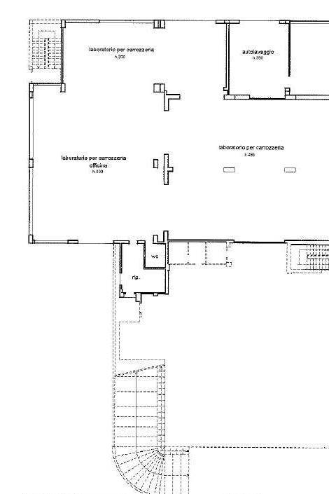
Porzione di capannone commerciale

A 70 - Umbertide

Nel comune di Umbertide, nella zona industriale, proponiamo in affitto porzione di capannone a piano terra artigianale/industriale posto in posizione strategica con 200 mq di piazzale ad uso esclusivo.
L'edificio internamente è composto da un ampio vano, un ripostiglio e un WC, ed è dotato di grandi vetrate ed uscita di sicurezza. Precedentemente il capannone è sato utilizzato come laboratorio per carrozzeria e officina auto.

Per maggiori informazioni contattare i numeri 3714448166 o 0753763447 per parlare con un consulente dedicato.
Se vuoi saperne di più, puoi parlare con R.E.VOLUTION IMMOBILIARE.
Caratteristiche
Contratto
Affitto
Tipologia
Capannone
Superficie
200 m²
Locali
3 locali
Piano
Piano terra, con accesso disabili
Piani edificio
1
Disponibilità
Libero
Altezza capannone
4 m
Altre caratteristiche
  • Mensa
  • Passo carrabile
  • Recintato
  • Spogliatoio
  • Vigilanza CCTV
Dettaglio superficie

Capannone

Piano
Piano terra
Superficie
200,0 m²
Coefficiente
100%
Tipo superficie
Principale
Sup. commerciale
200,0 m²
Informazioni sul prezzo
Prezzo
€ 800/mese
Prezzo al m²
4 €/m²
New
Dettaglio dei costi
Spese condominio
Nessuna spesa condominiale
Cauzione
€ 1.600
Efficienza energetica

Consumo di energia

175 kWh/m² annoF

Planimetria
Virtual tour
Scopri ogni angolo dell'immobile
+19
Inserzionista
scheda agenzia
Opzioni aggiuntive

Contatta l'inserzionista