Agenzie
Prezzi immobili
Valuta casa
Mutui
Pubblica annunci
pubblica
Accedi
1/3
3
Foto
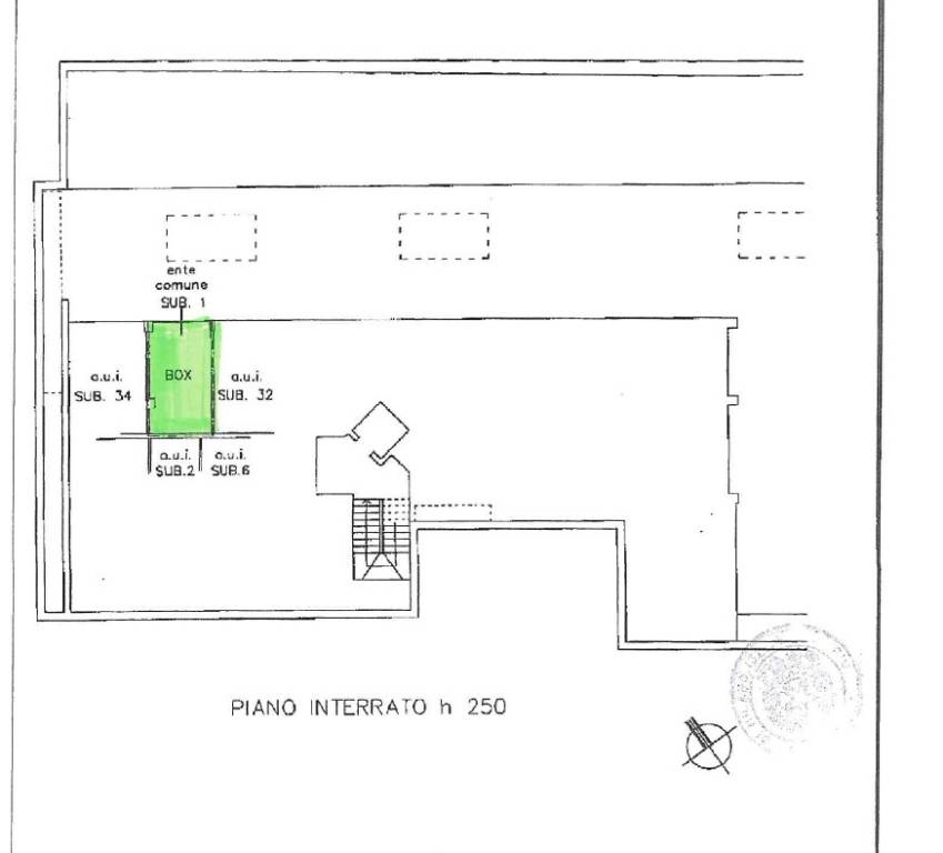
Planimetria
Garage - Box in Vendita
Meda
Viale Rimembranze
€ 20.000
14 m²
S
Nota
aggiungi
Annuncio aggiornato il 12/05/2025
Descrizione
riferimento
: BoxCri
Box singolo
Per info e appuntamenti Cristina 3357857427 - Meda, viale Rimembranze n.15, in contesto recente vendesi box singolo h 2,50, larghezza porta m2,80. Libero subito.
leggi tutto
Caratteristiche
Contratto
Vendita
Tipologia
Garage - Box | Box in garage comune
Larghezza porta garage
2,8 m
Superficie
14 m²
Piano
Interrato (-1)
Disponibilità
Libero
Altre caratteristiche
Accessibilità 24h
Informazioni sul prezzo
Prezzo
€ 20.000
Prezzo al m²
1.429 €/m²
Proponi prezzo
New
avvisami se scende di prezzo
Dettaglio dei costi
Spese condominio
€ 20/mese
Planimetria
Espandi
Inserzionista
Immobiliare Valsecchi
Mostra Telefono
scheda agenzia
Opzioni aggiuntive
segnala annuncio
stampa annuncio
condividi annuncio
Contatta l'inserzionista
Richiedere maggiori informazioni
Motivo di contatto
Mi interessa questo immobile, vorrei avere maggiori informazioni
Invia messaggio
Oppure
Richiedi visita
Proponi prezzo
Immobiliare Valsecchi
Mostra Telefono
segnala annuncio
messaggio
Visita