Villa unifamiliare via Ginestre, 0, Val Di Sole, Monzuno

€ 350.000
5+
143 m²
2
No
Terrazzo
Cantina

Nota

Annuncio aggiornato il 23/05/2025
Descrizione

riferimento: 29/CF

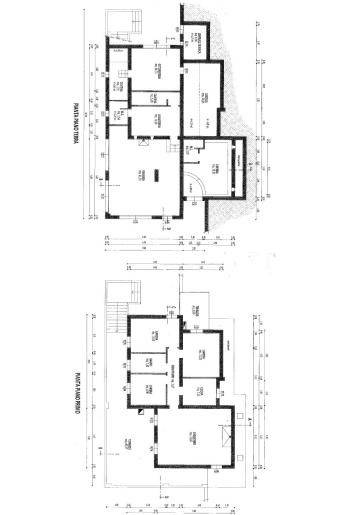
MONZUNO LOCALITA’ BRENTO - A pochi chilometri da Pianoro nella Riserva Naturale del Contrafforte Pliocenico, in ottima posizione, sul percorso della Via Degli Dei proponiamo villa indipendente, in discrete condizioni, con ampi spazi interni, suddivisa su due livelli con taverna e garage. Piano Terra: ampia zona living con cucina a vista, camera, bagno e locali tecnici. Piano Primo: Ingresso su soggiorno, cucina abitabile, due camere matrimoniali. Completa la proprietà un ampio giardino con parco di 4.000 metri. Ideale come prima abitazione immersa nel verde, come casa vacanze o come struttura ricettiva per sosta sul Cammino Degli Dei. EURO 350.000 Rif.: 29/CF Gabetti Porta Santo Stefano Tel.: 0514989858 bosantostefano@******
Se vuoi saperne di più, puoi parlare con GABETTI BOLOGNA PORTA SANTO STEFANO.

Di solito risponde entro 2 giorni

Caratteristiche
Tipologia
Villa unifamiliare | Intera proprietà | Classe immobile media
Contratto
Vendita
Piano
Piano terra
Piani edificio
1
Ascensore
No
Superficie
143 m²
Locali
5+
Camere da letto
3
Cucina
Cucina abitabile
Bagni
2
Balcone
No
Terrazzo
Box, posti auto
2 in box privato/box in garage, 1 in parcheggio/garage comune
Riscaldamento
Autonomo, a radiatori, alimentato a metano
Altre caratteristiche
  • Esposizione esterna
  • Fibra ottica
  • Infissi esterni in doppio vetro / PVC
  • Porta blindata
  • Impianto tv centralizzato
Dettaglio superficie

Abitazione

Piano
Piano terra
Superficie
143,0 m²
Coefficiente
100%
Tipo superficie
Principale
Sup. commerciale
143,0 m²
Informazioni sul prezzo
Prezzo
€ 350.000
Prezzo al m²
2.448 €/m²
New
Dettaglio dei costi
Spese condominio
Nessuna spesa condominiale
Efficienza energetica
  • Stato

    Ottimo / Ristrutturato
  • Riscaldamento

    Autonomo, a radiatori, alimentato a metano
  • Certificazione energetica

    In attesa di certificazione
Planimetria
PLN STATO DI FATTO
Scopri ogni angolo dell'immobile
+26
Mutuo
%
Durata del mutuo

Rata da € 1.040 al mese

€ 105.000 (30%)

€ 245.000 (70%)

Vuoi sapere che mutuo puoi richiedere?

Opzioni aggiuntive

Contatta l'inserzionista

Oppure