Capannone in Vendita

€ 178.500
1.914 m²

Nota

Annuncio aggiornato il 15/09/2025
Descrizione

riferimento: 300046

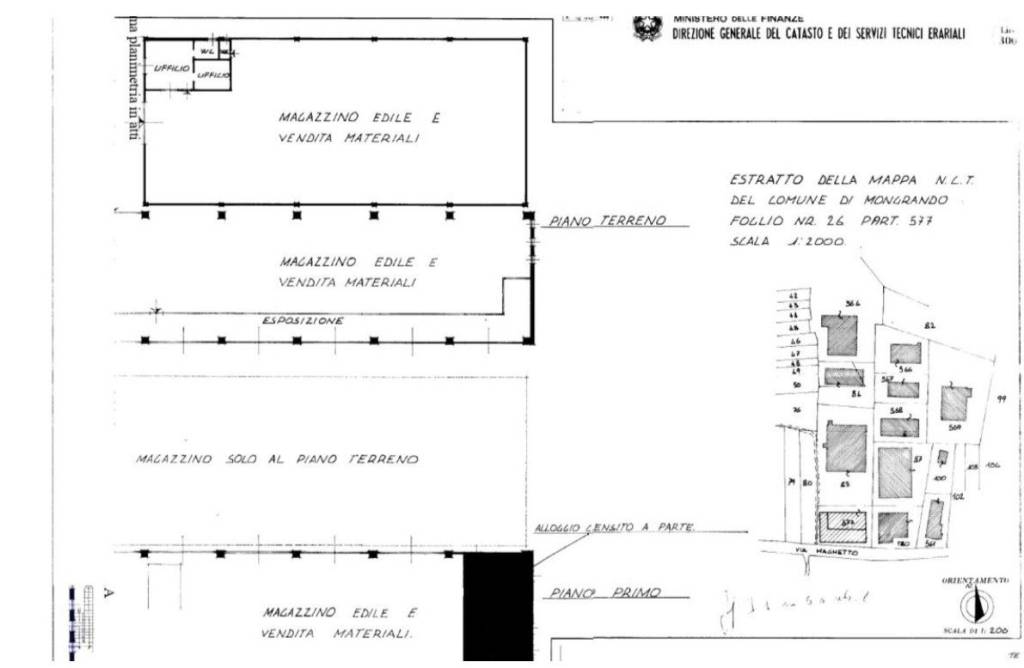
Capannone industriale in vendita a Mongrando (BI), via Maghetto 103 / 105

Cerved Property Services Italy S.r.l. propone in vendita un capannone industriale di 1.914 mq sviluppati su due livelli, completo di un vasto spazio esterno di proprietà.
Costruito nel 1980, l'immobile offre una solida struttura e grande versatilità per diverse destinazioni d'uso. Situato nella pittoresca località montana di Mongrando, in provincia di Biella, l'area vanta un vivace tessuto commerciale, in particolare nel settore turistico.
L'edificio si presta idealmente per attività industriali, artigianali, deposito o vendita di materiali edili. Posizione strategica in periferia, con facile accesso a negozi e servizi essenziali. Un'occasione imperdibile per investitori alla ricerca di un immobile con forte potenziale di sviluppo.
Per maggiori informazioni e per una visita in loco, vedasi riferimenti a lato.
Caratteristiche
Contratto
Vendita
Tipologia
Capannone
Superficie
1.914 m²
Disponibilità
Libero
Altre caratteristiche
  • Esposizione esterna
Informazioni sul prezzo
Prezzo
€ 178.500
Prezzo al m²
93 €/m²
New
Efficienza energetica

Consumo di energia

G

Planimetria
Scopri ogni angolo dell'immobile
+27
Opzioni aggiuntive

Contatta l'inserzionista