Trilocale via Montello 2, Villasanta

€ 350.000
3
101 m²
2
2
Balcone
Terrazzo

Nota

Annuncio aggiornato il 21/10/2025
Descrizione

riferimento: 61059719

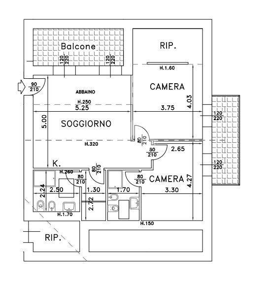
In una zona centrale e comoda con tutti i servizi, nasce una nuova mini palazzina in costruzione. All'interno di questa moderna realizzazione, proponiamo in vendita il sottotetto di 101 mq, composto da 3 locali con doppi servizi.

L'appartamento presenta un ingresso nella luminosa zona giorno con angolo cottura, ambiente ideale per accogliere familiari e amici. La zona notte è composta da due camere da letto, entrambe con accesso a un balcone con esposizione a est, perfetto per godere della luce del mattino. Completano la proprietà due comodi bagni di servizio, pensati per garantire funzionalità e comfort.

L'appartamento dispone inoltre di un ampio terrazzo di 16 mq, ideale per momenti di relax all'aperto. Incluso nel prezzo, è presente un box doppio in lunghezza, offrendo praticità e comodità per il parcheggio.

L'intervento edilizio è progettato per garantire il massimo comfort e risparmio energetico, con classe energetica A3/A4. L'edificio sarà dotato di pannelli solari, mentre gli appartamenti beneficeranno di un impianto di riscaldamento a pavimento e raffrescamento canalizzato, assicurando benessere in ogni stagione.

L'acquisto avverrà tramite vendita programmata.
Ogni agenzia ha un proprio titolare ed e' autonoma - Le presenti informazioni non costituiscono elemento contrattuale.
Canale Youtube: Tecnocasa di Villasanta - Pagina Instagram: notaroabitaresrl - Pagina Facebook: Agenzia Tecnocasa Di Villasanta
Se vuoi saperne di più, puoi parlare con Basilio Armando Notaro ..

Di solito risponde entro 1 giorno

Caratteristiche
Tipologia
Appartamento | Intera proprietà | Classe immobile media
Contratto
Vendita
Piano
2 piano
Piani edificio
2
Ascensore
Superficie
101 m²
Locali
3
Camere da letto
2
Cucina
Cucina abitabile
Bagni
2
Arredato
No
Balcone
Terrazzo
Box, posti auto
1 in box privato/box in garage
Riscaldamento
Autonomo, a pavimento, alimentato a solare
Climatizzazione
Autonomo
Informazioni sul prezzo
Prezzo
€ 350.000
Prezzo al m²
3.465 €/m²
New
Dettaglio dei costi
Spese condominio
Nessuna spesa condominiale
Efficienza energetica

Consumo di energia

1 kWh/m² annoA4

Scopri ogni angolo dell'immobile
+13
Opzioni aggiuntive

Contatta l'inserzionista

Oppure