Villa bifamiliare via Campo Sportivo, Ponti

€ 230.000
5+
299 m²
2
No
Balcone
Terrazzo
Parzialmente Arredato
Cantina

Nota

Annuncio aggiornato il 11/09/2025
Descrizione

riferimento: 5974

Villa / Villetta in vendita a Ponti

A pochi passi dal centro di Ponti, paesino ai margini del Monferrato, immerso nella natura e ben collegato sia Ad Acqui Terme che a Savona, vendesi villa bifamiliare con giardino, forno, magazzino e altro fabbricato ad uso officina.
Strutturalmente l'immobile è perfetto, con tetto rivisto nel 2012 e particolari molto affascinanti, come rivestimenti in pietra storici, porte artigianali in legno, grate antiche e alcune chicche che vi invitiamo a scoprire.
Si accede alla proprietà dalla strada comunale tramite un cancello elettrico che la racchiude. Sul piazzale in luserna insiste l'abitazione, un bel forno a legna con spazio per cucinare in pietra, una grande officina/ garage e altri due piccoli fabbricati a ricovero attrezzi.
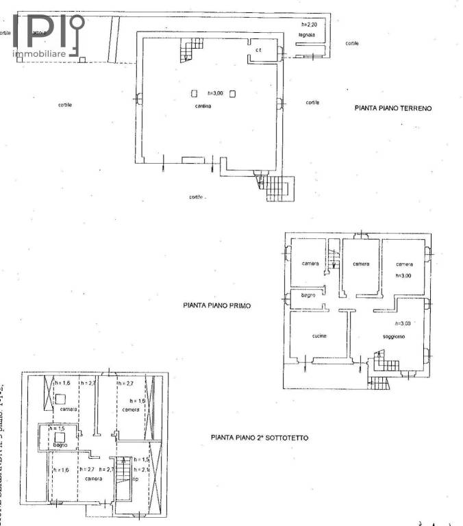
Entrando nella casa di circa 130 mq per piano, troviamo subito a piano terra un grande locale adibito a garge, con spazio per almeno tre vetture, e corredato sia da una cantina che dal vano caldaia, da questo livello è possibile accedere all'abitazione internemente con una scala grezzo. Salendo invece dall'esterno tramite una bella scalinata in luserna arriviamo ad una bella terrazza che prepara per l'accesso all'abitazione vera e propria, strutturata su due piani, con la possibilità di creare due appartamenti. Il primo si apre su di una bellissima sala con camino e scala a schiena d'asino in legno per il piano superiore, accesso alla cucina, che a sua volta ha una portafinestra per uscire sulla terrazza esterna e una stufa corredata da forno a legna che funge anche da termocucina. La zona notte è composta da tre camere da letto e da un bagno con finiture anni 80 con vasca.
Finestre in legno doppio vetro con zanzariere, porte e particolari in legno artigianali e di pregio, corrimano della terrazza in ferrobattuto e cucina in muratura, con parte superiore in ferro decorato datato 1682.
Al piano superiore, raggiungibile dalla scala posta in sala, abbiamo il secondo appartamento in cui manca solo la cucina che al momento è al grezzo, anche se gli attacchi sono presenti. L'accesso si apre su di uno spazio aperto che rimanda a due grandi vani, di cui uno con balcone con vista bellissima sulle colline circostanti e un bagno in ceramica di fattura moderna, con doccia, ancora cucina al grezzo appunto. Qui troviamo un bel tetto in legno a vista e il pavimento in cotto, mentre al piano sottostante abbiamo il parquet nelle camere e piastrelle di ceramica nelle altre zone.
Perfettamente abitabile, dotata anche di impianto di videosorveglianza.
Riscaldamento sia con caldaia Riello a gasolio del 2014, sia tramite termocucina, ma il metano arriva alla porta di casa, tetto rifatto 2014, fognatura comunale, acqua comunale e pozzo di acqua sorgiva che si trova nel terreno a fianco a casa di circa 1500 mq
Ideale come mono o bifalmilaire per stare in campagna tranquilli, tra le colline del Monferrato e a meno di un'ora dalle spiagge
Se vuoi saperne di più, puoi parlare con Sara Sormano.
Caratteristiche
Tipologia
Villa bifamiliare | Intera proprietà | Classe immobile signorile
Contratto
Vendita
Piano
Piano terra, da 1 a 2
Piani edificio
3
Ascensore
No
Superficie
299 m²
Locali
5+
Camere da letto
5
Cucina
Cucina abitabile
Bagni
2
Arredato
Parzialmente Arredato
Balcone
Terrazzo
Box, posti auto
2 in box privato/box in garage, 4 in parcheggio/garage comune
Riscaldamento
Autonomo, a radiatori, alimentato a gasolio
Altre caratteristiche
  • Caminetto
  • Esposizione doppia
  • Impianto di allarme
  • Infissi esterni in doppio vetro / legno
  • Impianto tv singolo
Dettaglio superficie

Abitazione

Piano
1
Superficie
100,0 m²
Coefficiente
100%
Tipo superficie
Principale
Sup. commerciale
100,0 m²

Mansarda

Piano
2
Superficie
80,0 m²
Coefficiente
100%
Tipo superficie
Principale
Sup. commerciale
80,0 m²

Altro

Piano
Piano terra
Superficie
170,0 m²
Coefficiente
70%
Tipo superficie
Principale
Sup. commerciale
119,0 m²
Informazioni sul prezzo
Prezzo
€ 230.000
Prezzo al m²
769 €/m²
New
Dettaglio dei costi
Spese condominio
Nessuna spesa condominiale
Efficienza energetica

Consumo di energia

350 kWh/m² annoG

Planimetria
Foto 37
Foto 38
Scopri ogni angolo dell'immobile
+33
Mutuo
%
Durata del mutuo

Rata da € 683 al mese

€ 69.000 (30%)

€ 161.000 (70%)

Vuoi sapere che mutuo puoi richiedere?

Opzioni aggiuntive

Contatta l'inserzionista

Oppure