Locale commerciale in Vendita

Prezzo su richiesta
2
490 m²
2
T

Nota

Annuncio aggiornato il 20/05/2025
Descrizione

riferimento: EK-120692614

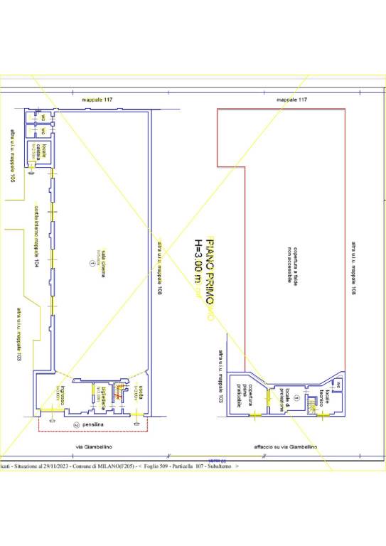
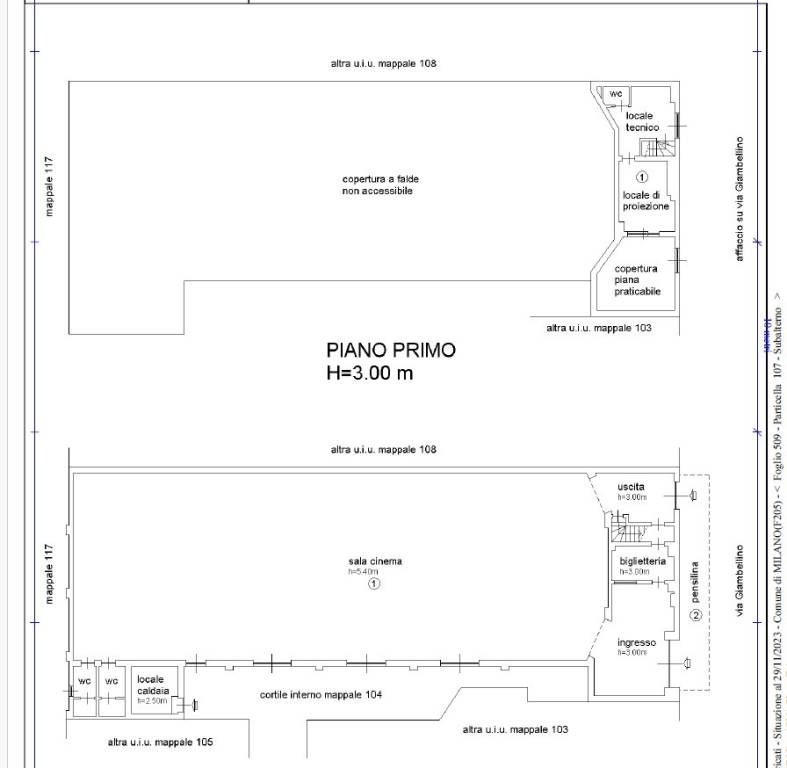
VENDESI IMMOBILE COMMERCIALE “EX CINEMA” – VIA GIAMBELLINO 1

In posizione strategica, nel cuore del quartiere Giambellino in forte espansione e riqualificazione, proponiamo in vendita immobile commerciale indipendente di circa 500 mq, con fronte strada di circa 15 metri, accesso diretto e ottima visibilità.
La proprietà, ex cinema, si sviluppa interamente al piano terra con ambienti ampi e versatili, ed è adatta a molteplici destinazioni d’uso: ristorazione, showroom, spazio eventi, cinema, centro culturale, palestra, supermercato, coworking, spazio polifunzionale o trasformazione residenziale/commerciale (previa verifica urbanistica). Le ampie altezze interne e l’assenza di pilastri centrali rendono lo spazio facilmente modulabile.
Posizione ben servita:
• A pochi metri dal capolinea della nuova metropolitana M4 San Cristoforo, che collega direttamente all’aeroporto di Linate e al centro di Milano.
• Fermata del tram 14 proprio di fronte all’ingresso.
• Area in piena trasformazione urbana, con importanti interventi di recupero, nuovi servizi e sviluppi residenziali e commerciali già avviati.
• È in corso un ampio progetto di riqualificazione dell’intero quartiere, che comprende: la demolizione di diversi edifici (già in parte avvenuta), l’attivazione della nuova linea M4 della metropolitana, la realizzazione di un parcheggio pubblico da circa 290 posti e la costruzione di un collegamento ciclo-pedonale tra piazza Tirana, Lorenteggio, Ronchetto sul Naviglio e via Lodovico il Moro. Questo percorso, che attraversa la ferrovia, il Naviglio Grande e via Lodovico il Moro, consentirà un facile accesso alla nuova stazione M4 San Cristoforo.L'immobile rappresenta una buona opportunità per chi cerca uno spazio ampio, indipendente e personalizzabile, in una zona in forte sviluppo.
Per informazioni dettagliate, planimetrie e visite: non esitate a contattarci.
Caratteristiche
Contratto
Vendita
Tipologia
Locale commerciale
Superficie
490 m²
Locali
2 locali, 2 bagni
Piano
Piano terra, con accesso disabili
Piani edificio
1
Altezza soffitti
6,3 m
Vetrine
3 vetrine su strada, 15 m lineari
Disponibilità
Libero
Altre caratteristiche
  • Parzialmente Arredato
  • Saracinesche manuali
  • Uscita emergenza
  • Esposizione nord-est
Dettaglio superficie

Negozio - Locale commerciale

Piano
Piano terra
Superficie
490,0 m²
Coefficiente
100%
Tipo superficie
Principale
Sup. commerciale
490,0 m²
Informazioni sul prezzo
Prezzo
Prezzo su richiesta
Dettaglio dei costi
Spese condominio
Nessuna spesa condominiale
Planimetria
PLN_GIAMBELLINO
NEGOZIO_GIAMBELLINO
Rilievo pdf 1
Scopri ogni angolo dell'immobile
+3
Opzioni aggiuntive

Contatta l'inserzionista