Capannone in Affitto

€ 15.000/mese
4
3.200 m²
3+

Nota

Zenso

Prestiti online e veloci

Confronta le offerte in 1 minuto

Annuncio aggiornato il 08/10/2025
Descrizione

riferimento: EK-120706070

CAPANNONE CON RIBALTA 3200 MQ A BURAGO DI MOLGORA

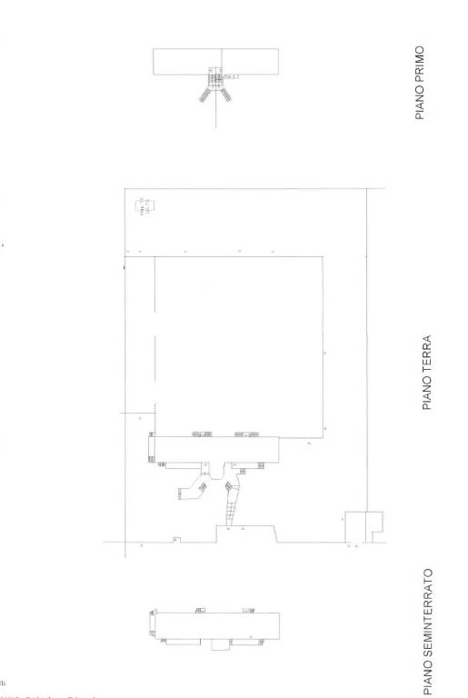
CAPANNONE CON RIBALTA 3200 MQ A BURAGO DI MOLGORA - AREA PRODUTTIVA MQ 2600 CON ALTEZZA UTILE DI 4 METRI – UFFICIO PIANO RIALZATO MQ 200 – SPOGLIATOI, SERVIZI E LOCALE MENZA AL PIANO SEMINTERRATO MQ 200 – APPARTAMENTI AL PIANO PRIMO MQ 200 – CORTILE PRIVATO MQ 3300 - L'immobile è sito nella zona industriale di Burago di Molgora e dista soli 4 km dall'imbocco dell'autostrada A4 casello di Agrate Brianza e a 3 km dall'imbocco con la tangenziale EST di Vimercate. L’area produttiva o di stoccaggio ha una metratura totale di 2600 mq dei quali 2200 con altezza utile di 4 metri e 400 mq con altezza utile di 4,5 metri, è fornita di 4 comodi portoni d’accesso oltre a 1 baia di carico e dispone di impianto elettrico certificato e predisposizione per il riscaldamento. Al piano seminterrato troviamo gli spogliatoi, i servizi e il locale mensa al servizio della parte produttiva. Sul fronte sono disposti gli uffici al piano rialzato con ingresso separato e collegati alla produzione mentre al piano primo troviamo la zona appartamenti. Completa la proprietà il cortile privato e recintato di circa 3300 mq. SCOPRI ALTRE SOLUZIONI SUL NOSTRO SITO WWW.CASAEINDUSTRIA.IT
Se vuoi saperne di più, puoi parlare con Sara Rubbi.
Caratteristiche
Contratto
Affitto
Tipologia
Capannone
Superficie
3.200 m²
Locali
4 locali, 3+ bagni
Piano
3 piani: Piano terra, Piano rialzato, 1°, con accesso disabili
Piani edificio
3
Box, posti auto
10 in parcheggio/garage comune
Disponibilità
Libero
Altezza capannone
6 m
Altezza sottotrave
4 m
Campate
4 - con pilastri
Banchine di carico
1
Altre caratteristiche
  • Docce
  • Mensa
  • Passo carrabile
  • Recintato
  • Spogliatoio
Dettaglio superficie

Capannone

Piano
Piano terra
Superficie
2.800,0 m²
Coefficiente
100%
Tipo superficie
Principale
Sup. commerciale
2.800,0 m²

Ufficio o Studio

Piano
Piano rialzato
Superficie
200,0 m²
Coefficiente
100%
Tipo superficie
Principale
Sup. commerciale
200,0 m²

Abitazione

Piano
1
Superficie
200,0 m²
Coefficiente
100%
Tipo superficie
Principale
Sup. commerciale
200,0 m²
Informazioni sul prezzo
Prezzo
€ 15.000/mese
Prezzo al m²
5 €/m²
New
Dettaglio dei costi
Spese condominio
Nessuna spesa condominiale
Cauzione
€ 45.000
Planimetria
planimetria
Virtual tour
Scopri ogni angolo dell'immobile
+29
Opzioni aggiuntive

Contatta l'inserzionista

Oppure