Locale commerciale in Vendita

€ 320.000
5+
164 m²
1

Nota

Annuncio aggiornato il 08/09/2025
Descrizione

riferimento: neg1

Negozio totalmente ristrutturato, forte visibilità

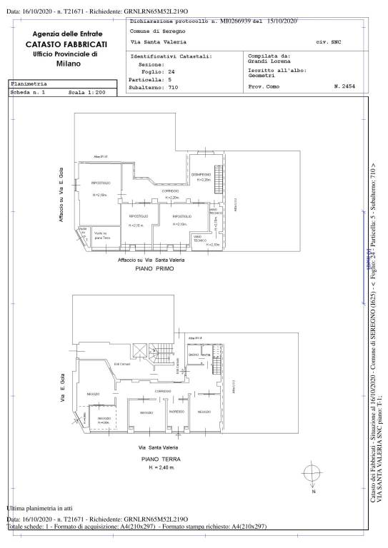
Seregno, a ridosso della chiesa di Santa Valeria, su strada di fortissimo passaggio, proponiamo in vendita ampio negozio disposto su due livelli e più precisamente:
- piano terra con cinque vetrine, composto da quattro locali oltre antibagno e bagno;
- piano primo con locale tecnico e tre vani finestrati e molto luminosi.
L’immobile si presenta in buono stato di conservazione, è libero su tre lati, è dotato di doppio ingresso, pavimentazione in monocottura, porte in legno, serramenti in alluminio con doppi vetri. Il riscaldamento è autonomo ad aria calda e fredda con fancoil. A completare cantina.
L’immobile risulta locato con regolare contratto di locazione e viene pertanto venduto a reddito.
Caratteristiche
Contratto
Vendita | Immobile a reddito
Tipologia
Locale commerciale
Superficie
164 m²
Locali
5+ locali, 1 bagno, doppio ingresso
Piano
2 piani: Piano terra, 1°
Piani edificio
2
Vetrine
5 vetrine su strada
Ultima attività svolta
Altro
Disponibilità
Disponibile dal 01/09/2029
Altre caratteristiche
  • Cablato
  • Impianto di allarme
  • Luci d'emergenza
  • Porta tagliafuoco
  • Posizione ad angolo
  • Rilevatori antincendio
  • Uscita emergenza
Dettaglio superficie

Negozio - Locale commerciale

Piano
Piano terra
Superficie
82,0 m²
Coefficiente
100%
Tipo superficie
Principale
Sup. commerciale
82,0 m²

Negozio - Locale commerciale

Piano
1
Superficie
82,0 m²
Coefficiente
100%
Tipo superficie
Principale
Sup. commerciale
82,0 m²
Informazioni sul prezzo
Prezzo
€ 320.000
Prezzo al m²
1.951 €/m²
New
Dettaglio dei costi
Spese condominio
€ 300/mese
Efficienza energetica

Consumo di energia

398.44 kWh/m² annoC

Planimetria
Planimetria_fg24_part5_sub711 1
Planimetria_fg24_part5_sub710 1
Scopri ogni angolo dell'immobile
+14
Opzioni aggiuntive

Contatta l'inserzionista

Oppure