Capannone in Vendita

€ 415.000
5+
600 m²
3

Nota

Annuncio aggiornato il 22/05/2025
Descrizione

riferimento: 61063440

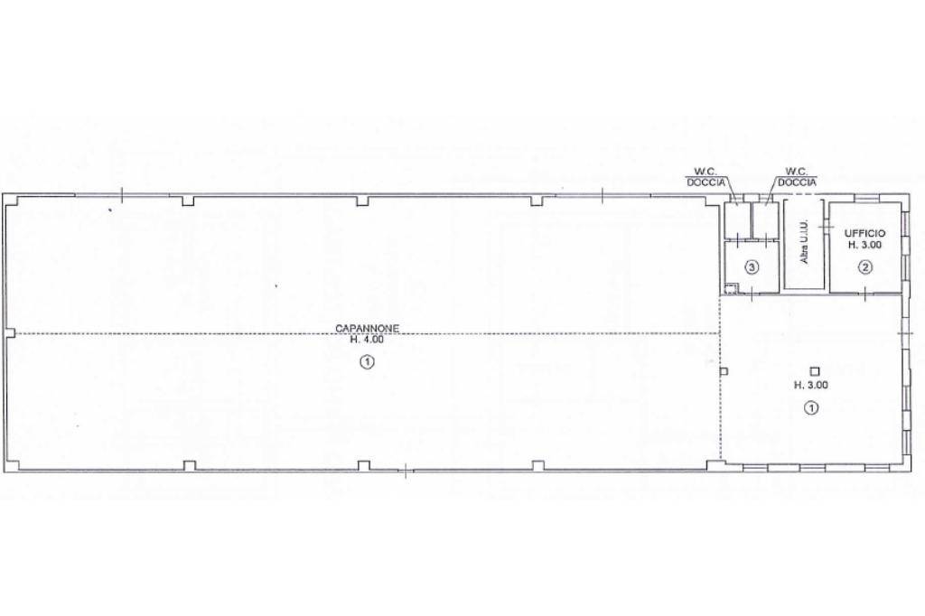
Proponiamo in vendita capannone industriale sito nel comune di Verolanuova, più precisamente in Via Circonvallazione.
L’immobile, recintato, si estende su una superficie di circa 600 mq ed è così caratterizzato:
- Altezza 4,5 m
- Un’unica campata
- 1 accesso carraio
- 3 portoni di altezza 3,70 m circa
- 7 locali cablati
- 3 servizi igienici con annessi doccia e spogliatoio
- Aria compressa
- Portineria all’ingresso
- Presente un balcone
- Completo di impianto di allarme e videosorveglianza
- Completo di impianto di illuminazione ed elettrico
- Completo di impianto di riscaldamento ed aria condizionata
Il capannone ha una superficie complessiva di 600 mq, di cui 50 mq destinati a zona uffici. Al primo piano è presente un appartamento di 120 mq. Inoltre, 100 mq situati nella parte anteriore del capannone sono adibiti a uso commerciale.
La zona industriale di Verolanuova, situata nella provincia di Brescia, è un polo produttivo consolidato. La zona è ben collegata grazie alla sua vicinanza alla strada statale Brescia-Cremona e alla strada statale Quinzanese, facilitando l'accesso alle principali arterie di comunicazione. Oggi, Verolanuova rappresenta un punto di riferimento per l'industria e la logistica nella Bassa Bresciana, con un mix di aziende operanti nei settori tecnologico, meccanico e manifatturiero.
Se vuoi saperne di più, puoi parlare con Claudio Valecci ..

Di solito risponde entro 12 ore

Caratteristiche
Contratto
Vendita
Tipologia
Capannone
Superficie
600 m²
Locali
5+ locali, 3 bagni
Piano
Piano terra
Piani edificio
1
Box, posti auto
10 in parcheggio/garage comune
Disponibilità
Libero
Altezza capannone
4,5 m
Campate
1 - senza pilastri
Altre caratteristiche
  • Docce
  • Impianto di allarme
  • Reception
  • Recintato
  • Spogliatoio
  • Vigilanza CCTV
Dettaglio superficie

Capannone

Piano
Piano terra
Superficie
600,0 m²
Coefficiente
100%
Tipo superficie
Principale
Sup. commerciale
600,0 m²
Informazioni sul prezzo
Prezzo
€ 415.000
Prezzo al m²
692 €/m²
New
Efficienza energetica
  • Anno di costruzione

    1990
  • Stato

    Buono / Abitabile
  • Riscaldamento

    Autonomo, ad aria, alimentato a pompa di calore
  • Climatizzatore

    Autonomo, freddo/caldo
Planimetria
PLANIMETRIA
PLANIMETRIA
Scopri ogni angolo dell'immobile
+40
Opzioni aggiuntive

Contatta l'inserzionista

Oppure