Villa a schiera via Roma 41, Casale Cremasco, Casale Cremasco-Vidolasco

€ 209.000
4
235 m²
2
No
Parzialmente Arredato

Nota

Annuncio aggiornato il 16/10/2025
Descrizione

riferimento: 61064241

CASALE CREMASCO: proponiamo in vendita casa indipendente, di generose metrature, disposta su due piani, con ampio box di proprietà e area esterna privata di circa 270 mq.
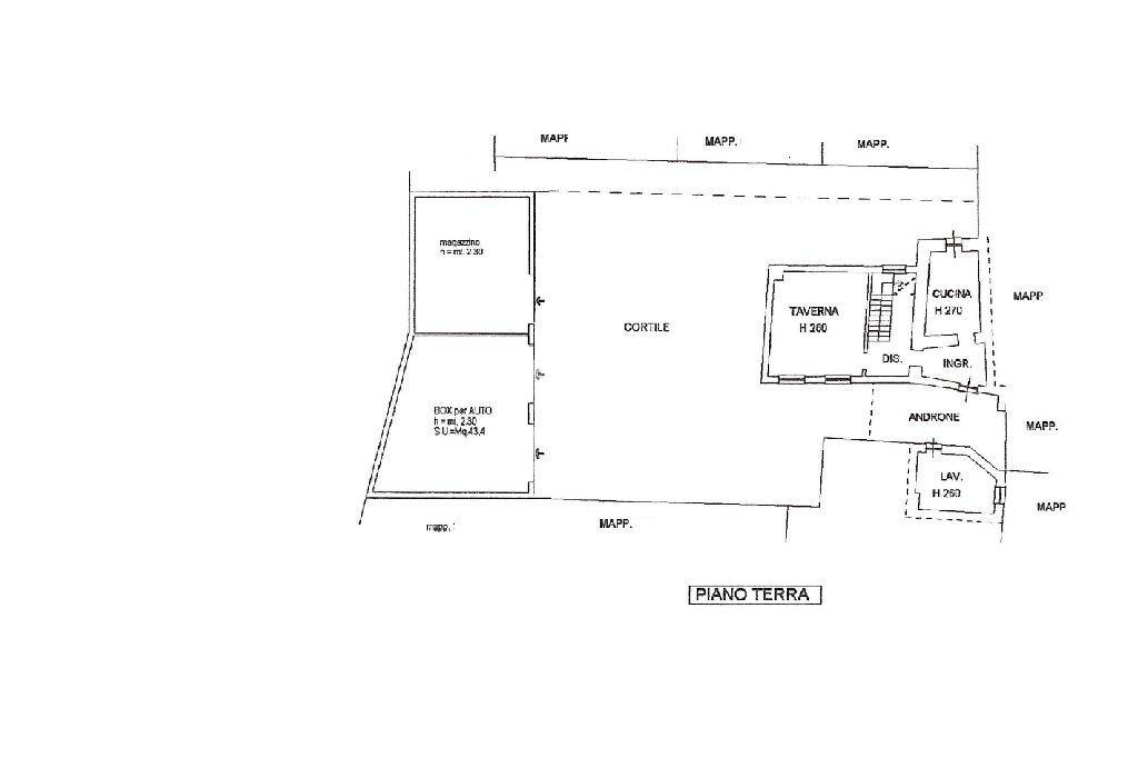
L'abitazione è così composta: al piano terra troviamo l'ingresso, la cucina abitabile con portafinestra per accedere al cortile e una taverna di 22 mq attualmente adibita a soggiorno/sala da pranzo, con slpit del climatizzatore e camino funzionante.
Sempre al piano terra troviamo un locale distaccato adibito a lavanderia, con doccia.
Salendo al primo piano raggiungiamo la zona notte, composta da 3 camere da letto e bagno.
Completano la soluzione un box doppio ed un magazzino, per circa 80 mq totali.
Infissi in legno con doppi vetri e zanzariere, tetto rifatto e caldaia sostituita 5 anni fa. Allarme.
Se vuoi saperne di più, puoi parlare con Claudio Pezzotti ..

Di solito risponde entro 1 giorno

Caratteristiche
Tipologia
Villa a schiera | Intera proprietà | Classe immobile media
Contratto
Vendita
Piano
Piano terra
Piani edificio
2
Ascensore
No
Superficie
235 m²
Locali
4
Camere da letto
3
Cucina
Cucina angolo cottura
Bagni
2
Arredato
Parzialmente Arredato
Balcone
No
Terrazzo
No
Box, posti auto
1 in box privato/box in garage
Riscaldamento
Autonomo, a radiatori, alimentato a metano
Climatizzazione
Autonomo
Altre caratteristiche
  • Impianto di allarme
Informazioni sul prezzo
Prezzo
€ 209.000
Prezzo al m²
889 €/m²
New
Dettaglio dei costi
Spese condominio
Nessuna spesa condominiale
Efficienza energetica

Consumo di energia

343.39 kWh/m² annoG

Planimetria
piano terra
piano primo
piano primo con foto
piano terra con foto
Scopri ogni angolo dell'immobile
+31
Opzioni aggiuntive

Contatta l'inserzionista

Oppure