Capannone in Vendita

€ 3.400.000
2.894 m²

Nota

Annuncio aggiornato il 06/06/2025
Descrizione

riferimento: EK-120848560

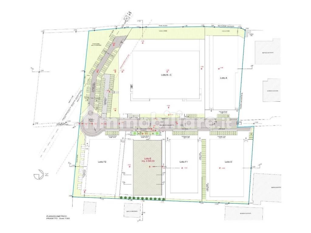
NUOVO Edificio industriale

In via delle Toiane a Merate (LC), su una area accanto alla concessionaria Volkswagen Autocogliati di via Bergamo, è stato recentemente autorizzato un piano di lottizzazione per la realizzazione di nuovi Edifici industriali (come da immagini allegate). Su un lotto edificabile di 4.820mq di proprietà, Impresa di costruzione realizza NUOVO Edificio industriale di 2.520mq coperti piano terra + 200mq uffici piano primo, con piazzale esterno 1.740mq e parcheggi di proprietà. Altezza massima 10m, classe A con ottime finiture (vedi CAPITOLATO ALLEGATO). Sono previste le opere di urbanizzazione che permetteranno un facile accesso alla proprietà, grazie al rifacimento della rotonda di via Bergamo e alla realizzazione in via delle Toiane di una nuova strada asfaltata con doppia corsia, marciapiede e ciclabile. Prezzo 3.400.000€ comprensivo di terreno, piazzale, parcheggi, oneri e opere di urbanizzazione, strada di accesso, finiture a Capitolato.
Se vuoi saperne di più, puoi parlare con Luca Molgora.
Caratteristiche
Contratto
Vendita
Tipologia
Capannone
Superficie
2.894 m²
Piano
2 piani: Piano terra, 1°
Piani edificio
2
Disponibilità
Libero
Altezza sottotrave
10 m
Dettaglio superficie

Capannone

Piano
Piano terra
Superficie
2.520,0 m²
Coefficiente
100%
Tipo superficie
Principale
Sup. commerciale
2.520,0 m²

Ufficio o Studio

Piano
1
Superficie
200,0 m²
Coefficiente
100%
Tipo superficie
Principale
Sup. commerciale
200,0 m²

Piazzale

Piano
Piano terra
Superficie
1.740,0 m²
Coefficiente
10%
Tipo superficie
Principale
Sup. commerciale
174,0 m²
Informazioni sul prezzo
Prezzo
€ 3.400.000
Prezzo al m²
1.175 €/m²
New
Efficienza energetica

Consumo di energia

≥ 3,51 kWh/m² annoA1

Scopri ogni angolo dell'immobile
+2
Opzioni aggiuntive

Contatta l'inserzionista

Oppure