Villa bifamiliare, nuova, 180 m², Pasian di Prato

€ 415.000
4
180 m²
2
No
Balcone
Terrazzo

Nota

Annuncio aggiornato il 04/06/2025
Descrizione

riferimento: Bifam-Pasian1

Unità in Villa Bifamiliare di Nuova Realizzazione

Proponiamo unità in esclusiva villa bifamiliare di futura costruzione, disposta su due piani, progettata per offrire il massimo comfort e un'efficienza energetica di alto livello, con classe energetica A4.

Ogni unità abitativa è dotata di:
• Giardino privato, ideale per momenti di relax all'aperto;
• Posti auto coperti o garage privato per la massima comodità;
• Impianti di nuova generazione che sfruttano le energie rinnovabili, garantendo bassi consumi e un impatto ambientale ridotto.

La villa è progettata con materiali di alta qualità e finiture moderne, per offrire spazi luminosi e funzionali, ideali per famiglie in cerca di una soluzione residenziale esclusiva e a basso impatto energetico.

Posizione privilegiata:
La villa sorge nella tranquilla località di Pasian Di Prato, a pochi minuti dai principali servizi e infrastrutture.
Non perdere questa opportunità unica di vivere in una casa moderna, ecologica e confortevole. Contattaci senza esitazione per maggiori dettagli o per fissare una visita!

*Il prezzo è da intendersi iva esclusa, la quale dipende dalla tipologia di acquisto.
*Il prezzo si riferisce alla singola unità abitativa.
Caratteristiche
Tipologia
Villa bifamiliare | Intera proprietà
Contratto
Vendita
Piano
Piano terra
Piani edificio
2
Ascensore
No
Superficie
180 m²
Locali
4
Camere da letto
3
Cucina
Cucina abitabile
Bagni
2
Arredato
No
Balcone
Terrazzo
Box, posti auto
1 in box privato/box in garage, 2 in parcheggio/garage comune
Riscaldamento
Autonomo
Altre caratteristiche
  • Armadio a muro
  • Esposizione esterna
  • Fibra ottica
  • Impianto di allarme
  • Porta blindata
  • Cancello elettrico
  • VideoCitofono
Dettaglio superficie

Abitazione

Piano
Piano terra
Superficie
180,0 m²
Coefficiente
100%
Tipo superficie
Principale
Sup. commerciale
180,0 m²
Informazioni sul prezzo
Prezzo
€ 415.000
Prezzo al m²
2.306 €/m²
New
Dettaglio dei costi
Spese condominio
Nessuna spesa condominiale
Efficienza energetica

Consumo di energia

≥ 3,51 kWh/m² anno, edificio energia quasi zeroA4

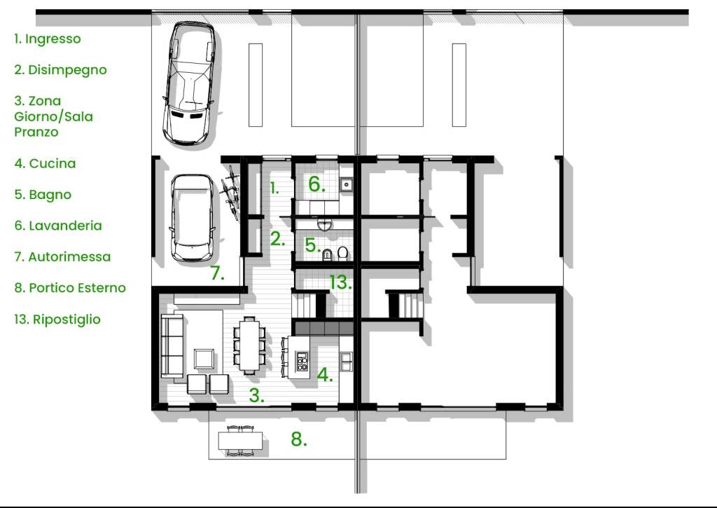
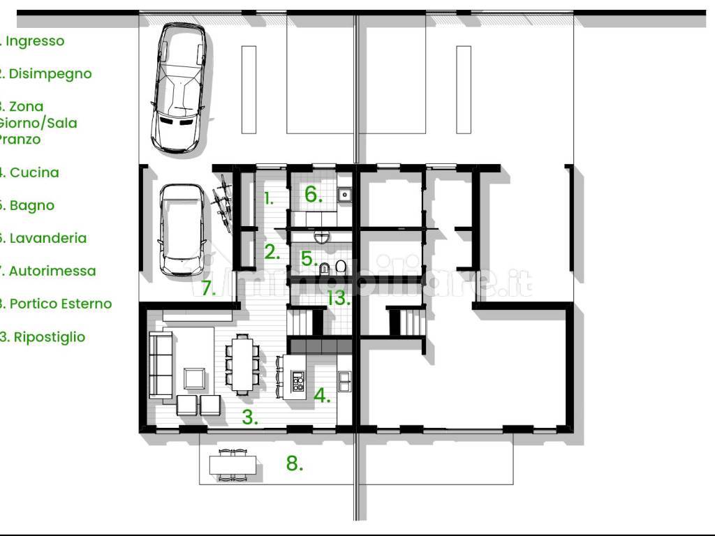
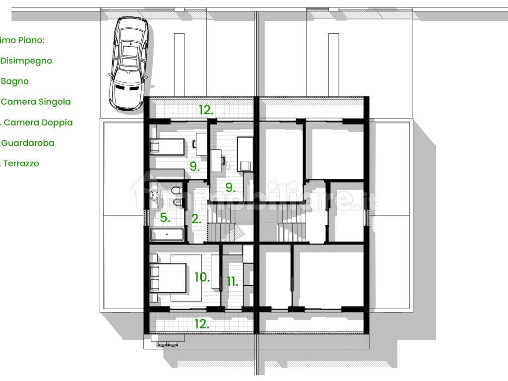
Planimetria
Pianta1JPG_Legenda
Pianta2JPG_Legenda
Scopri ogni angolo dell'immobile
+7
Mutuo
%
Durata del mutuo

Rata da € 1.233 al mese

€ 124.500 (30%)

€ 290.500 (70%)

Vuoi sapere che mutuo puoi richiedere?

Opzioni aggiuntive

Contatta l'inserzionista

Oppure