Capannone in Affitto

€ 8.750/mese
2.400 m²

Nota

Zenso

Prestiti online e veloci

Confronta le offerte in 1 minuto

Annuncio aggiornato il 27/05/2025
Descrizione

riferimento: EK-120890664

Affittiamo un capannone a Rimini

Nel contesto produttivo più organizzato di Rimini, dal punto di vista dei servizi e della raggiungibilità, proponiamo in affitto un capannone di 2300 metri quadri al piano terra e 100 metri quadri di spazi ad uso uffici perfettamente e modernamente rifiniti, tra piano terra e piano primo.
Sono presenti nella parte produttiva i servizi igienici e gli spogliatoi con doccie. Il pavimento industriale è di recentissima costruzione e in perfetto stato, senza cavillature e fughe di degrado.
Gli impianti sono composti dalla illuminazione perfetta, dalle luci di emergenza, numerose calate per la forza motrice. L'impianto di aria compressa di recente installazione. Sui pilastri sono fissati i supporti per carriponte da tonnellaggio medio.
Per la parte inerente l'accessibilità, sul frontestrada è installato un ampio cancello scorrevole di oltre 8 metri e in corrispondenza si trova il portone di accesso per il carico e scarico, replicato da altri due portoni sugli altri lati.
Il rapporto aero illuminante è garantito da ampie finestrature, don doppi vetri e infissi moderni in alluminio.
L'interno è stato ridipinto di recente. L'immobile nel suo cpmplesso è perfetto dal punto di vista estetico e consente un'ottima chance per un'attività di immagine.
Il canone annuo richiesto è di Euro 105.000.
E' richiesta una garanzia semestrale.
Disponibilità in 60 giorni.
Rif. RCAPP5
Se vuoi saperne di più, puoi parlare con Giancarlo Delvecchio.
Caratteristiche
Contratto
Affitto
Tipologia
Capannone
Superficie
2.400 m²
Piano
Piano terra
Piani edificio
1
Dettaglio superficie

Capannone

Piano
Piano terra
Superficie
2.300,0 m²
Coefficiente
100%
Tipo superficie
Principale
Sup. commerciale
2.300,0 m²

Ufficio o Studio

Piano
Piano terra
Superficie
100,0 m²
Coefficiente
100%
Tipo superficie
Principale
Sup. commerciale
100,0 m²
Informazioni sul prezzo
Prezzo
€ 8.750/mese
Prezzo al m²
4 €/m²
New
Dettaglio dei costi
Cauzione
Non indicata
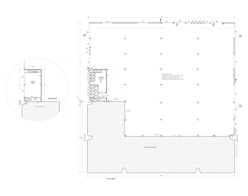
Planimetria
Planimetria 1
Scopri ogni angolo dell'immobile
+10
Opzioni aggiuntive

Contatta l'inserzionista

Oppure