Ufficio - Studio in Vendita

€ 150.000
5+
130 m²
2
1

Nota

Annuncio aggiornato il 11/10/2025
Descrizione

riferimento: ET436

Ufficio con possibilità di cambio uso alle Spianate

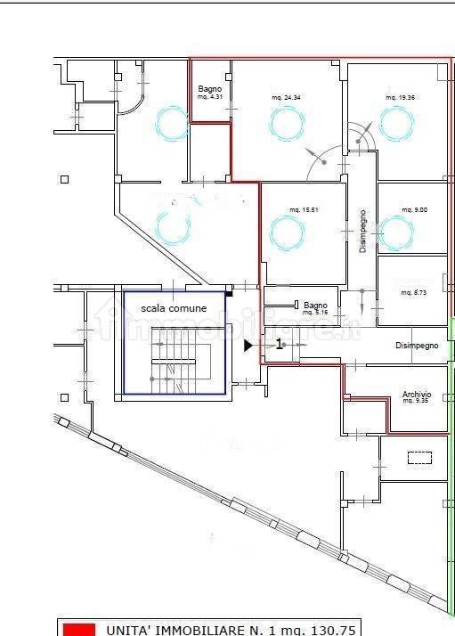
Castiglioncello (LI) ,zona Spianate , vi proponiamo la vendita di questo spazioso appartamento di circa 130 mq. situato al piano 1° ed ultimo di condominio ben tenuto .
L' immobile attualmente è adibito e accatastato ad uso ufficio , con la possibilità reale di poter effettuare il cambio destinazione d' uso verso la civile abitazione di una porzione di esso circa 60 mq . ,dove esiste già la predisposizione per l' istallazione della cucina .
Al suo ingresso un corridoio ci accompagna ad un vano ad uso archivio, ripostiglio , stamperia , sala riunioni , tre grandi uffici , due bagni .
L' immobile dispone di grandi lucernari con apertura elettrica che consentono agli ambienti di avere una eccellente luminosità e una ottima areazione , dispone di impianto di climatizzazione aria calda e fredda . boiler per acqua calda .
RIF. ET436
Per info. Tramonti Eleonora 392-0976864 Classe Energetica: Non indicata
Caratteristiche
Contratto
Vendita
Tipologia
Ufficio - Studio | Classe immobile economica
Superficie
130 m²
Locali
5+ locali, 2 bagni
Piano
Disponibilità
Libero
Dettaglio superficie

Altro

Piano
1
Superficie
130,0 m²
Coefficiente
100%
Tipo superficie
Principale
Sup. commerciale
130,0 m²
Informazioni sul prezzo
Prezzo
€ 150.000
Prezzo al m²
1.154 €/m²
New
Efficienza energetica
  • Stato

    Ottimo / Ristrutturato
  • Riscaldamento

    Autonomo
  • Certificazione energetica

    Non classificabile
Scopri ogni angolo dell'immobile
+27
Opzioni aggiuntive

Contatta l'inserzionista

Oppure