Terreno edificabile in Vendita

€ 80.000
6.000 m²

Nota

Annuncio aggiornato il 28/05/2025
Descrizione

riferimento: EK-120908648

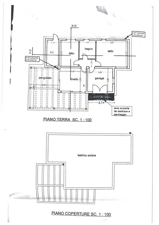
Fondo Rustico con progetto approvato

Lizzanello località Fondo "Campore Li Lei". Apollo immobiliare agenzia di Lecce città, viale Giacomo Leopardi 13/A, propone in vendita nel comune di Lizzanello, in zona residenziale immersa nel verde, lotto di terreno di 6000 mq totalmente recintato con progetto approvato per la realizzazione di una villetta unifamiliare su unico livello, di 100 mq circa.
Per maggiori informazioni o per fissare appuntamenti: Apollo Immobiliare di Andrea Apollo - viale Giacomo Leopardi, 13/A - LECCE Tel. 0832 523299 - Cell. 334 7782451 - mail: info@apolloimmobiliare.com web: apolloimmobiliare.com
Prezzo euro 80.000,00
Se vuoi saperne di più, puoi parlare con Andrea Apollo.

Di solito risponde entro 1 giorno

Caratteristiche
Contratto
Vendita
Tipologia
Terreno edificabile
Superficie
6.000 m²
Disponibilità
Libero
Qualificazione urbanistica
Singola unità
Dislivello terreno
Leggero
Altezza massima edificabile
3 m
Area edificabile
120 m²
Accesso in strada/servitù di passaggio
In strada sterrata
Altre caratteristiche
  • Allaccio acqua
  • Allaccio elettricità
  • Recintato
Informazioni sul prezzo
Prezzo
€ 80.000
Prezzo al m²
13 €/m²
New
Planimetria
Elaborati Grafici 2
Elaborati Grafici 3
Elaborati Grafici 4
Elaborati Grafici 5
Scopri ogni angolo dell'immobile
+10
Opzioni aggiuntive

Contatta l'inserzionista

Oppure