Terratetto unifamiliare frazione Forotondo 6, Fabbrica Curone

€ 28.000
2
77 m²
1
No
Terrazzo
Cantina

Nota

Annuncio aggiornato il 30/10/2025
Descrizione

riferimento: 61054945

La casa è in piccola e graziosa frazione di Fabbrica Curone, in posizione tranquilla a pochi minuti da San Sebastiano Curone e a una ventina di minuti da Caldirola.
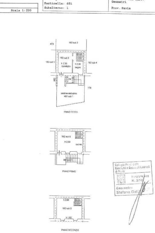
La proprietà è semindipendente ed è stata completamente ristrutturata da una quindicina di anni. L'abitazione è disposta su più livelli: l'ingresso è tramite il cortiletto con piccolo angolo giardino. La cantina completa della caldaia e il bagno finestrato con la doccia sono al piano terra. La cucina è al primo piano, è abitabile con doppia finestra e completa di camino. Al secondo e ultimo piano vi è la camera da letto matrimoniale mansardata.
La scala di accesso è sia interna sia esterna tramite un grazioso terrazzino. L'immobile ha il riscaldamento autonomo con gas metano e gli infissi sono in legno doppio vetro.
La proprietà è ideale come casa vacanze, per chi è alla ricerca di un luogo tranquillo e fresco nei periodi estivi.
Se vuoi saperne di più, puoi parlare con Mino Melandro ..

Di solito risponde entro 12 ore

Caratteristiche
Tipologia
Terratetto unifamiliare | Intera proprietà | Classe immobile media
Contratto
Vendita
Piano
3 piano
Piani edificio
3
Ascensore
No
Superficie
77 m²
Locali
2
Camere da letto
1
Cucina
Cucina abitabile
Bagni
1
Arredato
No
Balcone
No
Terrazzo
Riscaldamento
Autonomo, a radiatori, alimentato a metano
Informazioni sul prezzo
Prezzo
€ 28.000
Prezzo al m²
364 €/m²
New
Dettaglio dei costi
Spese condominio
Nessuna spesa condominiale
Efficienza energetica

Consumo di energia

278.09 kWh/m² annoG

Planimetria
Nuova planimetria
Nuova planimetria
Scopri ogni angolo dell'immobile
+20
Opzioni aggiuntive

Contatta l'inserzionista

Oppure