Terreno edificabile in Vendita

€ 1.500.000
5.000 m²

Nota

Annuncio aggiornato il 19/11/2025
Descrizione

riferimento: 61033079

Vendesi lotto con possibilità di cambio destinazione d'uso.

Vendesi lotto con possibilità di cambio destinazione d'uso.

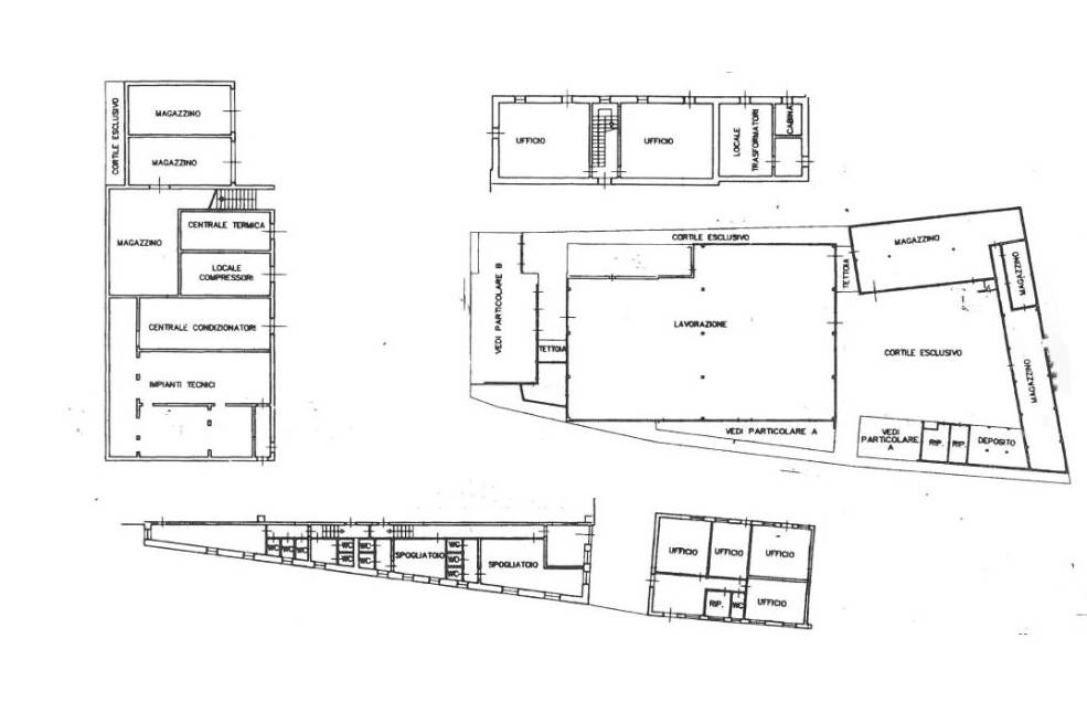
A Erbusco, proponiamo in vendita lotto con una superficie totale di circa 5.000mq, con zona produttiva suddivisa in tre capannoni distinti e di diverse metrature:

il primo di circa 145 mq allo stato rustico, open space e con una baia di carico, il secondo misura circa 420 mq con altezza interna di circa 3,40 m sotto trave, con accesso carraio di altezza 3,70 m e larghezza 5 m ed infine un terzo fabbricato di circa 1.050 mq, con altezza interna 4,10 m, comprensivo di due stanze ufficio al piano terra ed un vano tecnico.

Sono presenti ulteriori spazi dedicati alla zona spogliatoio compresi di molteplici servizi igienici, un appartamento per il custode ed infine una palazzina esclusivamente adibita a centrale termica, locali per compressori e condizionatori, dei piccoli magazzini ed impianti tecnici, per il funzionamento della vecchia fabbrica.

Tutta l'impiantistica è presente ma da aggiornare o rifare completamente.

Non sono presenti il riscaldamento ed il raffrescamento.

Ubicato sulla Strada SPXII, la soluzione è ideale per attività leggere e/o di deposito, trasformabile in area residenziale/commerciale.
Se vuoi saperne di più, puoi parlare con Tecnorete Industriale Brescia Ovest.

Di solito risponde entro 1 giorno

Caratteristiche
Contratto
Vendita
Tipologia
Terreno edificabile
Superficie
5.000 m²
Disponibilità
Libero
Qualificazione urbanistica
Unità multiple
Dislivello terreno
Medio
Altezza massima edificabile
3 m
Area edificabile
5.000 m²
Accesso in strada/servitù di passaggio
In strada asfaltata
Informazioni sul prezzo
Prezzo
€ 1.500.000
Prezzo al m²
300 €/m²
New
Planimetria
Nuova planimetria
Virtual tour
Scopri ogni angolo dell'immobile
+8
Opzioni aggiuntive

Contatta l'inserzionista

Oppure