Palazzo - Edificio in Vendita

€ 1.290.000
1.854 m²
3+

Nota

Annuncio aggiornato il 26/09/2025
Descrizione

riferimento: EK-121097916

SEREGNO INTERO STABILE INDIPENDENTE

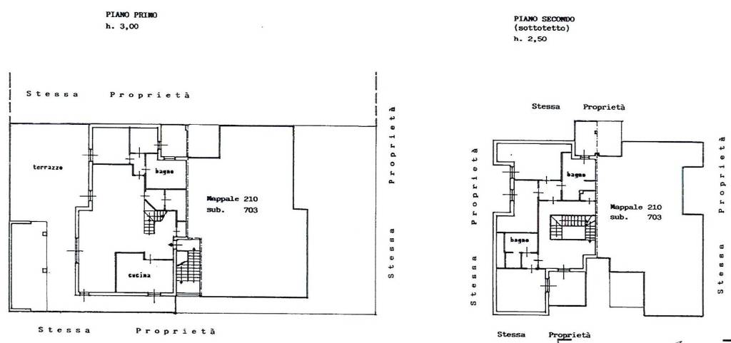
At Home Immobiliare propone in VENDITA nel Comune di Seregno, Intero Stabile con una metratura totale di oltre 3 mila mq. L'unità è così composta: PIANO TERRA cat. catastale C/3 superficie totale 1038 mq di capannone / laboratorio; area cortile / giardino di mq 1000; PIANO PRIMO: due abitazioni residenziali di mq 309 cad, cat. catastale A/2, entrambi disposti su due livelli - p.1 e p.2 (sottotetto h 2,50) con ampi terrazzi e balconi; PIANO INTERRATO: cat. catastale C/2 di mq totali 130. LIBERO SU QUATTRO LATI E POSTI AUTO INTERNI. Richiesta € 1.290.000,00. Per garantire massima privacy alla proprietà e nello stesso tempo fornire informazioni dettagliate e complete e’ necessario prendere contatti telefonici. Per Info e Appuntamenti At Home Immobiliare Via Moriggia n. 14; Recapito 380/8937956. NB La localizzazione dell'immobile potrebbe essere approssimativa (eventuali maggiori dettagli in agenzia). Il presente annuncio non costituisce vincolo contrattuale Tutti i dati citati nell'annuncio (metrature, spese condominiali, ecc. ) sono da ritenersi indicativi.
Se vuoi saperne di più, puoi parlare con Athome IMMOBILIARE.

Di solito risponde entro 1 giorno

Caratteristiche
Contratto
Vendita
Tipologia
Palazzo - Edificio | Classe immobile signorile
Superficie
1.854 m²
Locali
3+ bagni
Piano
3 piani: da Seminterrato a Piano terra, 1°
Piani edificio
3
Box, posti auto
4 in parcheggio/garage comune
Disponibilità
Libero
Altre caratteristiche
  • 1 balcone
  • Esposizione interna
  • Impianto di allarme
Dettaglio superficie

Magazzino - Deposito

Piano
Piano terra
Superficie
1.008,0 m²
Coefficiente
100%
Tipo superficie
Principale
Sup. commerciale
1.008,0 m²

Giardino

Piano
Piano terra
Superficie
1.000,0 m²
Coefficiente
10%
Tipo superficie
Principale
Sup. commerciale
100,0 m²

Appartamento

Piano
1
Superficie
308,0 m²
Coefficiente
100%
Tipo superficie
Principale
Sup. commerciale
308,0 m²

Appartamento

Piano
1
Superficie
308,0 m²
Coefficiente
100%
Tipo superficie
Principale
Sup. commerciale
308,0 m²

Magazzino - Deposito

Piano
Seminterrato
Superficie
130,0 m²
Coefficiente
100%
Tipo superficie
Principale
Sup. commerciale
130,0 m²
Informazioni sul prezzo
Prezzo
€ 1.290.000
Prezzo al m²
696 €/m²
New
Efficienza energetica
  • Stato

    Buono / Abitabile
  • Riscaldamento

    Autonomo, a radiatori, alimentato a gas
Planimetria
piantina capannone p.t
piantina appartamentoB
piantina cantina
piantina appartamentoC
Scopri ogni angolo dell'immobile
+70
Mutuo
%
Durata del mutuo

Rata da € 3.831 al mese

€ 387.000 (30%)

€ 903.000 (70%)

Vuoi un preventivo personalizzato e gratuito?

Opzioni aggiuntive

Contatta l'inserzionista

Oppure