Capannone in Vendita

€ 369.000
1.165 m²
3

Nota

Annuncio aggiornato il 04/06/2025
Descrizione

riferimento: LOR-2025-369

COLOGNA VENETA (VR)

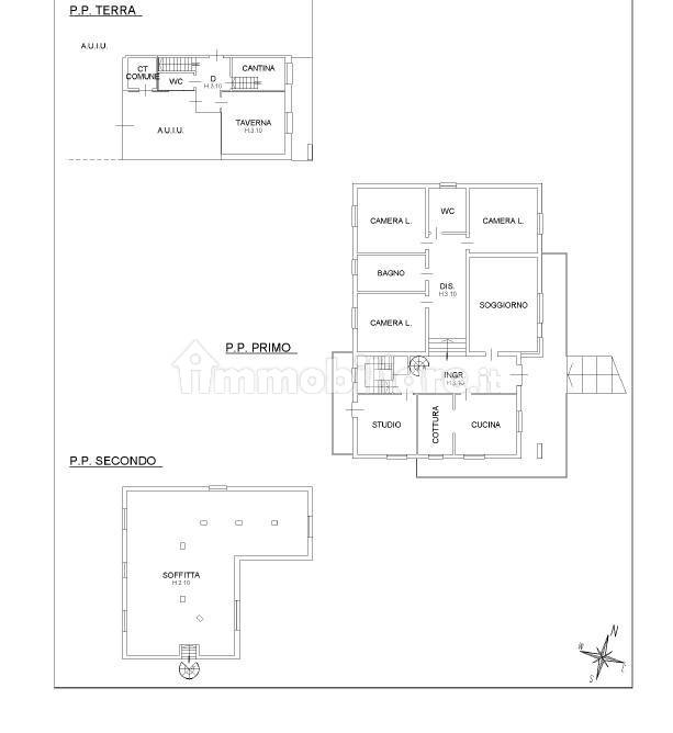
MAGAZZINO/CAPANNONE CON UNITA' RESIDENZIALE: il compendio si sviluppa su un lotto di 2.000 mq nel comune di Cologna Veneta in una zona artigianale, vicina al centro storico del paese.
L'immobile è composto da un magazzino di circa 600 mq con 270 mq di coperto esterno, un box di 50 mq, ed un unità a destinazione residenziale di circa 400 mq.
Doppio accesso carraio e spazio esterno di pertinenza (300 mq).
L'abitazione è composta da un ingresso con salotto, sala da pranzo, cucina, studio, 3 camere e due bagni, una mansarda con camino camera e bagno ed una taverna con bagno.
Cl. En. in fase di valutazione.
PER INFO: RIGODANZE RUDI TEL. 3475330729
Se vuoi saperne di più, puoi parlare con Rudi Rigodanze.
Caratteristiche
Contratto
Vendita
Tipologia
Capannone
Superficie
1.165 m²
Locali
3 bagni
Piano
2 piani: Piano terra, Piano rialzato
Piani edificio
2
Box, posti auto
4 in box privato/box in garage
Disponibilità
Libero
Altre caratteristiche
  • Passo carrabile
  • Spogliatoio
Dettaglio superficie

Capannone

Piano
Piano terra
Superficie
600,0 m²
Coefficiente
100%
Tipo superficie
Principale
Sup. commerciale
600,0 m²

Altro

Piano
Piano terra
Superficie
270,0 m²
Coefficiente
50%
Tipo superficie
Principale
Sup. commerciale
135,0 m²

Piazzale

Piano
Piano terra
Superficie
300,0 m²
Coefficiente
10%
Tipo superficie
Principale
Sup. commerciale
30,0 m²

Abitazione

Piano
Piano rialzato
Superficie
400,0 m²
Coefficiente
100%
Tipo superficie
Principale
Sup. commerciale
400,0 m²
Informazioni sul prezzo
Prezzo
€ 369.000
Prezzo al m²
317 €/m²
New
Scopri ogni angolo dell'immobile
+28
Opzioni aggiuntive

Contatta l'inserzionista

Oppure