Terratetto plurifamiliare piazza San Giovanni, Centro, Tonco

€ 99.900
5+
369 m²
2
No
Balcone
Cantina

Nota

Annuncio aggiornato il 05/11/2025
Descrizione

riferimento: EK-121132086

TERRATETTO BIFAMILIARE A TONCO

5 VALIDI MOTIVI PER ACQUISTARLO:
1) VISTA MOZZAFIATO
2) BIFAMILIARE CON POSSIBILITA' DI RENDERLO UNIFAMILIARE
3) GIARDINO PRIVATO
4) POSTO AUTO COPERTO
5) PERSONALIZZABILE SECONDO I PROPRI GUSTI

Nel cuore delle colline del Monferrato, in un paese tranquillo ma ben servito, ti presentiamo un'occasione davvero rara: due immobili al prezzo di uno.
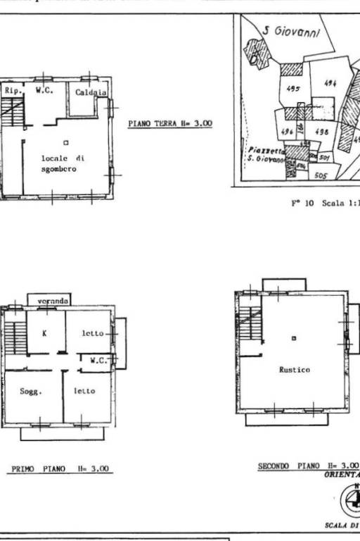
Il protagonista è un terratetto indipendente, perfetto per chi sogna uno spazio da modellare a proprio piacimento. Da una parte, una soluzione completamente da ristrutturare, con cucina, soggiorno e ben quattro camere da letto. Un progetto tutto da immaginare e personalizzare, anche grazie alla possibilità di collegare ogni piano con l’abitazione adiacente tramite semplici aperture nel muro.
La casa confinante è già abitabile e facilmente adattabile alle tue esigenze. Al piano terra ti accoglie un ampio garage con bagno e locale caldaia, perfetto anche come officina o laboratorio. Salendo, attraverso una comoda scala, si apre una spaziosa zona giorno con cucina abitabile, un soggiorno luminoso e due ampie camere da letto. E non manca un balcone con vista mozzafiato sulle colline, che regala quiete e bellezza in ogni stagione.
Ma non è finita qui: all’ultimo piano troviamo una grande taverna allo stato grezzo, pronta per essere rifinita e trasformata in uno spazio accogliente per amici, relax o hobby.
Il tutto è completato da un giardino privato e da un doppio posto auto coperto sotto tettoia.
Due case, infinite possibilità.
Che sia il tuo progetto di vita, una casa vacanza o un investimento intelligente, questa è la svolta che cercavi.

Possibilità di visionare altre soluzioni visitando il nostro sito www.gruppovendocasa.it. Per maggiori informazioni contatta il numero di telefono 0141 955509, o vieni a trovarci in Corso Alfieri 72 ASTI. Da oggi puoi seguirci anche su Facebook sulla pagina Vendocasa Asti Est https://www.facebook.com/profile.php?id=61557483040851

VUOI VENDERE CASA? AFFIDATI A NOI!!!
Cosa offriamo?
- Pubblicità su tutti i portali italiani ed esteri
- 47 uffici piemontesi uniti da una rete capillare interna ed in costante contatto che promuovono il tuo immobile
- Giornalino mensile con le nostre proposte immobiliari che gira su tutto il Piemonte
- massime valutazioni gratuite
AFFIDATI A NOI PER UNA VALUTAZIONE GRATUITA DEL TUO IMMOBILE! NON PERDERE L' OCCASIONE DI VENDERE CON NOI IN TEMPI BREVISSIMI RISPETTO A TUTTA LA CONCORRENZA!!
AGENZIA LEADER COME PRIMO MARCHIO IN TUTTO IL PIEMONTE!
Se vuoi saperne di più, puoi parlare con Vendocasa Asti Est.
Caratteristiche
Tipologia
Terratetto plurifamiliare | Intera proprietà | Classe immobile media
Contratto
Vendita
Piano
Piano terra
Piani edificio
3
Ascensore
No
Superficie
369 m²
Locali
5+
Camere da letto
6
Cucina
Cucina abitabile
Bagni
2
Arredato
No
Balcone
Terrazzo
No
Box, posti auto
2 in box privato/box in garage
Riscaldamento
Autonomo, a radiatori, alimentato a metano
Altre caratteristiche
  • Esposizione doppia
  • Infissi esterni in vetro / legno
  • Taverna
Dettaglio superficie

Abitazione

Piano
Piano terra
Superficie
369,0 m²
Coefficiente
100%
Tipo superficie
Principale
Sup. commerciale
369,0 m²
Informazioni sul prezzo
Prezzo
€ 99.900
Prezzo al m²
271 €/m²
New
Efficienza energetica
  • Anno di costruzione

    1930
  • Stato

    Buono / Abitabile
  • Riscaldamento

    Autonomo, a radiatori, alimentato a metano
  • Certificazione energetica

    In attesa di certificazione
Planimetria
PLANIMETRIA IMMOBILE DA RISTRUTTURARE
PLANIMETRIA
Virtual tour
Scopri ogni angolo dell'immobile
+45
Mutuo
%
Durata del mutuo

Rata da € 297 al mese

€ 29.970 (30%)

€ 69.930 (70%)

Vuoi sapere che mutuo puoi richiedere?

Opzioni aggiuntive

Contatta l'inserzionista

Oppure