Terratetto plurifamiliare via San G. Bosco 16, Melegnano

€ 490.000
5
223 m²
3
No
Balcone
Cantina

Nota

Annuncio aggiornato il 07/11/2025
Descrizione

riferimento: 61069905

MELEGNANO:
proponiamo casa semindipendente, con giardino privato.
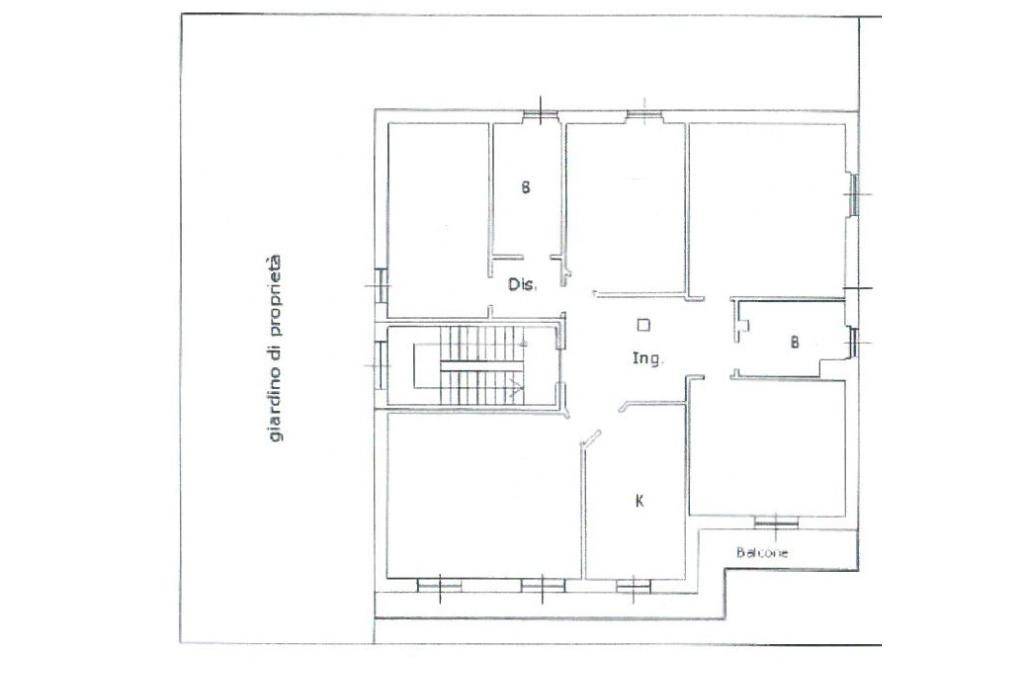
Dal cortile di proprietà accediamo ad una scala che ci conduce al primo piano dove troviamo l'immobile così composto :
ampio ingresso che da accesso alla sala, alla cucina abitabile e ad un locale adiacente alla cucina che può essere utilizzato come sala da pranzo o come camera. Questi locali godono dell'affaccio sull'ampio balcone.
Dal disimpegno inoltre si accede alle tre camere da letto e ai doppi servizi, entrambi finestrati.
L'abitazione è libera su tutti e quattro i lati garantendone la luminosità.
La proprietà ha recentemente sostituito tutti i serramenti esterni e installato l'impianto fotovoltaico, è inoltre dotata di una nuova caldaia a condensazione.
All'abitazione è abbinato un piano seminterrato, dove troviamo un ampio box di 39 mq che da accesso a un locale hobby finestrato con servizio igienico, 2 comode cantine e un locale adibito a locale caldaia.
Se vuoi saperne di più, puoi parlare con Mauro Delmonte ..

Di solito risponde entro 2 giorni

Caratteristiche
Tipologia
Terratetto plurifamiliare | Intera proprietà | Classe immobile media
Contratto
Vendita
Piano
1 piano
Piani edificio
1
Ascensore
No
Superficie
223 m²
Locali
5
Camere da letto
4
Cucina
Cucina abitabile
Bagni
3
Arredato
No
Balcone
Box, posti auto
1 in box privato/box in garage
Riscaldamento
Autonomo, a radiatori, alimentato a metano
Climatizzazione
Autonomo
Informazioni sul prezzo
Prezzo
€ 490.000
Prezzo al m²
2.197 €/m²
New
Dettaglio dei costi
Spese condominio
€ 8/mese
Efficienza energetica

Consumo di energia

80 kWh/m² annoD

Planimetria
planimetria
planimetria
PIANTINA
PIANTINA
Vista dall'alto - Nuovo progetto 02/09/2025 10:47
Virtual tour
Scopri ogni angolo dell'immobile
+25
Opzioni aggiuntive

Contatta l'inserzionista

Oppure