Villa bifamiliare, ottimo stato, 220 m², Castiglione, Villa Inferno, Montaletto, Cervia

€ 398.000
5
220 m²
2
No
Balcone
Parzialmente Arredato
Cantina

Nota

Annuncio aggiornato il 19/06/2025
Descrizione

riferimento: VE 286

VILLA BIFAMILIARE CON GIARDINO

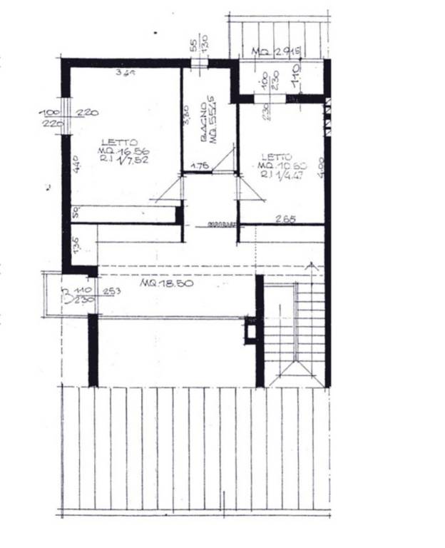
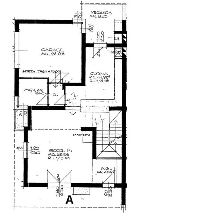
SAVIO CE - VILLA BIFAMILIARE CON GIARDINO. In zona residenziale e silenziosa, a pochi km dal mare, si vende villa bifamiliare in ottimo stato, composta da ingresso su luminoso soggiorno open space con cucina abitabile, veranda con camino e bagno, al piano superiore due camere di cui un'ampia matrimoniale, una doppia con balcone e un ulteriore camera utilizzabile come studio o 3 camera singola con piccolo balcone, bagno. Completa la proprietà un garage di 22 mq e una taverna, attualmente al grezzo, un giardino di 300 mq. Prezzo richiesto: € 398.000 - PER INFO: EMAIL: info@agenziazoffoli.it, TEL. 0544-995261, viale Matteotti 90, Milano Marittima
Se vuoi saperne di più, puoi parlare con AGENZIA ZOFFOLI.
Caratteristiche
Tipologia
Villa bifamiliare | Intera proprietà | Classe immobile media
Contratto
Vendita
Piano
Interrato (-1), piano terra
Piani edificio
2
Ascensore
No
Superficie
220 m²
Locali
5
Camere da letto
2
Cucina
Cucina abitabile
Bagni
2
Arredato
Parzialmente Arredato
Balcone
Terrazzo
No
Box, posti auto
1 in box privato/box in garage, 2 in parcheggio/garage comune
Riscaldamento
Autonomo, a radiatori, alimentato a gas
Altre caratteristiche
  • Esposizione esterna
  • Infissi esterni in doppio vetro / legno
  • Taverna
  • Impianto tv singolo
Dettaglio superficie

Abitazione

Piano
Piano terra
Superficie
170,0 m²
Coefficiente
100%
Tipo superficie
Principale
Sup. commerciale
170,0 m²

Giardino

Piano
Piano terra
Superficie
300,0 m²
Coefficiente
10%
Tipo superficie
Principale
Sup. commerciale
30,0 m²

Cantina

Piano
Interrato (-1)
Superficie
25,0 m²
Coefficiente
25%
Tipo superficie
Principale
Sup. commerciale
6,3 m²

Box o garage

Piano
Piano terra
Superficie
22,0 m²
Coefficiente
50%
Tipo superficie
Principale
Sup. commerciale
11,0 m²

Altro

Piano
Piano terra
Superficie
8,0 m²
Coefficiente
30%
Tipo superficie
Principale
Sup. commerciale
2,4 m²
Informazioni sul prezzo
Prezzo
€ 398.000
Prezzo al m²
1.809 €/m²
New
Dettaglio dei costi
Spese condominio
Nessuna spesa condominiale
Efficienza energetica

Consumo di energia

≥ 3,51 kWh/m² annoG

Planimetria
Planimetria PT
Planimetria 1P
Scopri ogni angolo dell'immobile
+8
Mutuo
%
Durata del mutuo

Rata da € 1.182 al mese

€ 119.400 (30%)

€ 278.600 (70%)

Vuoi sapere che mutuo puoi richiedere?

Opzioni aggiuntive

Contatta l'inserzionista

Oppure