Ufficio - Studio in Affitto

€ 450/mese
1
53 m²
1
1

Nota

Zenso

Prestiti online e veloci

Confronta le offerte in 1 minuto

Annuncio aggiornato il 11/06/2025
Descrizione

riferimento: 298

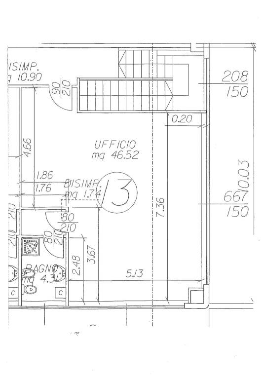
UFFICIO IN ZONA COMMERCIALE

In zona commerciale a 500 mt. da casello autostradale ufficio a Piano 1° ed ultimo composto da open space con doppio affaccio esterno, anti-bagno e bagno completo.
Se vuoi saperne di più, puoi parlare con Nicola Bari.
Caratteristiche
Contratto
Affitto
Tipologia
Ufficio - Studio | Classe immobile media
Superficie
53 m²
Locali
1 locale, 1 bagno
Disposizione Interni
Open space
Piano
Piani edificio
1
Disponibilità
Libero
Altre caratteristiche
  • Controsoffitto
  • Infissi esterni in doppio vetro / metallo
  • Esposizione nord-est
Dettaglio superficie

Ufficio o Studio

Piano
1
Superficie
53,0 m²
Coefficiente
100%
Tipo superficie
Principale
Sup. commerciale
53,0 m²
Informazioni sul prezzo
Prezzo
€ 450/mese
Prezzo al m²
8 €/m²
New
Dettaglio dei costi
Cauzione
€ 1.350
Efficienza energetica

Consumo di energia

≥ 3,51 kWh/m² annoF

Planimetria
Pianta uffici 1 1
Scopri ogni angolo dell'immobile
+4
Opzioni aggiuntive

Contatta l'inserzionista

Oppure