Villa unifamiliare Località Dignone, Romano di Lombardia

Prezzo su richiesta
3
262 m²
2
No

Nota

Annuncio aggiornato il 27/10/2025
Descrizione

riferimento: 61073620

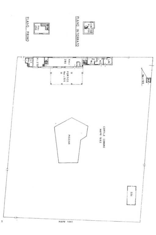
In una splendida cornice di campagna aperta, a breve distanza dal centro di Romano di Lombardia, proponiamo in vendita una villa singola completamente indipendente, immersa nel verde e circondata da un’area esclusiva di circa 5.000 mq. La proprietà si distingue per la sua posizione riservata e per gli ampi spazi esterni, ideali per chi desidera vivere a contatto con la natura senza rinunciare alla comodità.
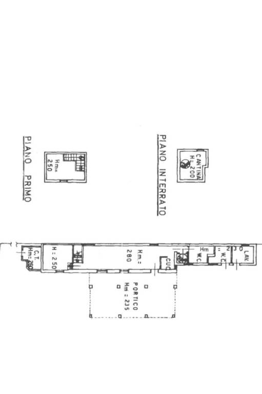
L’accesso avviene tramite un cancello carrale situato sul lato nord-est del terreno, che conduce all’abitazione attraverso un vialetto privato. Ad accoglierci troviamo un ampio portico coperto, perfetto per godersi momenti di relax all’aperto, che introduce all’interno dell’abitazione. Il soggiorno, spazioso e molto luminoso, è il cuore della casa: accogliente e ben disposto, si affaccia direttamente sull’area verde circostante, creando una continuità tra interno ed esterno. Accanto ad esso troviamo il cucinotto, separato ma funzionale, ideale per mantenere indipendente la zona cottura.
La zona notte principale si sviluppa interamente al piano terra e comprende una camera matrimoniale e un bagno padronale finestrato. Una scala interna conduce al piano superiore, dove si trova una seconda camera da letto, utilizzabile anche come studio, stanza per gli ospiti o spazio hobby. All’esterno, con accesso indipendente, sono presenti locali accessori molto utili, tra cui un secondo bagno e una comoda lavanderia. Completa la proprietà un box singolo, distaccato dal corpo principale, perfetto anche come deposito per attrezzi da giardinaggio o piccoli veicoli.
Il grande terreno che circonda la casa regala una straordinaria sensazione di libertà e riservatezza, ideale per chi ama vivere all’aperto, coltivare un orto o tenere animali. Fiore all’occhiello della proprietà è la meravigliosa piscina interrata, perfettamente inserita nel contesto verde, dove potersi rilassare nelle giornate estive in totale privacy.
Una soluzione abitativa unica nel suo genere, perfetta per chi cerca tranquillità, natura e indipendenza, a pochi minuti da tutti i servizi.
Se vuoi saperne di più, puoi parlare con Maurizio Vecchiarelli ..

Di solito risponde entro 1 giorno

Caratteristiche
Tipologia
Villa unifamiliare | Intera proprietà | Classe immobile media
Contratto
Vendita
Piano
Piano terra
Piani edificio
2
Ascensore
No
Superficie
262 m²
Locali
3
Camere da letto
2
Cucina
Cucina cucinotto
Bagni
2
Arredato
No
Balcone
No
Terrazzo
No
Box, posti auto
1 in box privato/box in garage
Riscaldamento
Autonomo, a radiatori, alimentato a metano
Climatizzazione
Autonomo
Informazioni sul prezzo
Prezzo
Prezzo su richiesta
Efficienza energetica

Consumo di energia

200 kWh/m² annoG

Planimetria
Planimetria
planimetria solo casa
Scopri ogni angolo dell'immobile
+21
Opzioni aggiuntive

Contatta l'inserzionista