Villa a schiera Residenza Sagittario, Milano 3, Basiglio

Prezzo su richiesta
5+
498 m²
3+
Lusso
No
Balcone
Terrazzo
Parzialmente Arredato
Cantina

Nota

Annuncio aggiornato il 16/06/2025
Descrizione

riferimento: Sag.12

Splendida Villa Diamante con piscina. Classe A++++

Una delle ville, se non la Villa, più bella e tecnologicamente più evoluta e moderna dell'intero comprensorio di Milano 3.

Posizionato ottimamente e libero su tre lati, questo immobile si presenta in condizioni perfette: facciate esterne, tetto, giardino, finiture interne, impianti, serramenti, pavimentazioni.... su ogni elemento sono sati eseguiti interventi di riqualificazione ed adeguamento.

Recentissimamente ristrutturata la villa è oggi in classe energetica A++++ e dispone di impianto per cogenerazione con pannelli solari e di tutte le tecnologie più avanzate.

Internamente l'immobile si presenta in modo impeccabile e la gestione di ogni ambiente concilia razionalità, funzionalità ed eleganza di stile.
Nessun intervento è necessario. L'immobile è perfetto ma, per sua natura, si presta, con piccoli interventi, ad essere adattato al proprio gusto personale.
Camere, bagni, zone "giorno" si sposano fra loro perfettamente e gli ambienti godono di silenziosità e luminosità durante l'intera giornata.

Il giardino è dotato di piscina, è piantumato in modo accurato e dotato di impianto di irrigazione e sistema anti-zanzare.

Una casa non per tutti ovviamente. Ma una casa bellissima.

Siamo a disposizione per ogni ragguaglio tecnico e per ulteriori immagini.

dimensioni:
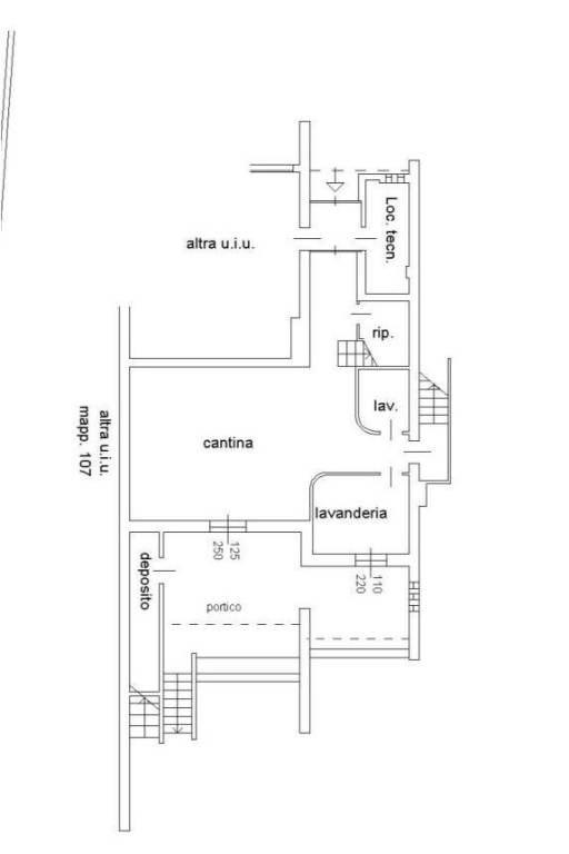
Piano seminterrato + portico mq.227
Piano rialzato mq. 218
Primo piano mq. 115
Sottotetto (h minima cm. 170) mq. 17
Giardino mq. 1408
Intero lotto mq. 1635

MILANO 3
Il comprensorio oggi

Il comprensorio di Milano 3 è una città giardino satellite, dove si vive immersi nel verde, fuori dal caos cittadino, in un ambiente che offre tutti i servizi necessari alle migliori condizioni abitative: sicurezza, comfort, verde, vita sociale, negozi e collegamenti efficienti con la città.

Sorto nella prima fascia del Parco Agricolo Sud di Milano, a soli due chilometri dalla tangenziale, si estende su un’area di 155 ettari (1.550.000 mq), di cui:

85% verde e spazi gioco
10% abitazioni
5% strade, separate tra pedonali/ciclabili e carrabili, senza intersezioni grazie ai numerosi ponti.
Ospita oggi circa 8.000 residenti, con uno standard di verde dedicato di oltre 80 mq per abitante, uno dei più alti d’Europa.

Un corpo di vigilanza privato attivo 24 ore su 24 garantisce sicurezza continua su tutto il territorio.

La storia

Progettato alla fine degli anni ’70 da Italcantieri (Gruppo Edilnord), Milano 3 fu realizzato tra il 1980 e il 1991, sull’esempio del precedente progetto di Milano 2. Nasce in risposta alla crescente esigenza di sfuggire alla congestione urbana senza rinunciare alla vicinanza con il centro economico della città.

Il verde fu pianificato sin dall'inizio con specie selezionate di alberi e arbusti, per creare nel tempo una vera città giardino.

Negli ultimi anni, l’evoluzione dell’assetto gestionale ha portato a una modernizzazione dei criteri amministrativi, con l’obiettivo di adeguare le abitazioni agli standard energetici e ambientali più attuali.

Oggi Milano 3 è un’oasi residenziale immersa in un parco maturo e curato, dove le infrastrutture e gli immobili sono oggetto di continua manutenzione e progetti di riqualificazione.

I servizi ai residenti

Il comprensorio è ricchissimo di servizi, pensati per soddisfare le esigenze di famiglie, professionisti e anziani, tra cui:

Scuole, centro sportivo, laghetti artificiali
Supermercati, bar, ristoranti, negozi di prossimità
Centro medico, farmacia, studi professionali
Servizi religiosi e ricreativi
Collegamenti pubblici con Milano città e i principali snodi viari.
Se vuoi saperne di più, puoi parlare con Cristiano Noci.

Di solito risponde entro 1 giorno

Caratteristiche
Tipologia
Villa a schiera | Intera proprietà | Immobile di lusso
Contratto
Vendita
Piano
Seminterrato, piano rialzato, da 1 a 2
Piani edificio
4
Ascensore
No
Superficie
498 m² | commerciale 638,7 m²
Locali
5+
Camere da letto
4
Cucina
Cucina abitabile
Bagni
3+
Arredato
Parzialmente Arredato
Balcone
Terrazzo
Box, posti auto
2 in box privato/box in garage, 2 in parcheggio/garage comune
Riscaldamento
Autonomo, a pavimento, alimentato a fotovoltaico
Climatizzazione
Autonomo, freddo/caldo
Altre caratteristiche
  • Armadio a muro
  • Esposizione doppia
  • Fibra ottica
  • Idromassaggio
  • Impianto di allarme
  • Infissi esterni in triplo vetro / legno
  • Mansarda
  • Porta blindata
Dettaglio superficie

Abitazione

Piano
Seminterrato
Superficie
227,0 m²
Coefficiente
70%
Tipo superficie
Principale
Sup. commerciale
158,9 m²

Abitazione

Piano
Piano rialzato
Superficie
218,0 m²
Coefficiente
100%
Tipo superficie
Principale
Sup. commerciale
218,0 m²

Abitazione

Piano
1
Superficie
115,0 m²
Coefficiente
100%
Tipo superficie
Principale
Sup. commerciale
115,0 m²

Soffitta

Piano
2
Superficie
17,0 m²
Coefficiente
35%
Tipo superficie
Principale
Sup. commerciale
6,0 m²

Giardino

Piano
Piano terra
Superficie
1.408,0 m²
Coefficiente
10%
Tipo superficie
Accessoria
Sup. commerciale
140,8 m²
Informazioni sul prezzo
Prezzo
Prezzo su richiesta
Dettaglio dei costi
Spese condominio
€ 450/mese
Spese riscaldamento
€ 2.000/anno
Efficienza energetica

Consumo di energia

16.31 kWh/m² annoA+

Planimetria
DOC_1809590122 copia 2 1
DOC_1809590122 copia 3 1
DOC_1809590122 copia 1
DOC_1809590122 1
Scopri ogni angolo dell'immobile
+43
Opzioni aggiuntive

Contatta l'inserzionista