Capannone in Vendita

€ 550.000
3
2.176 m²

Nota

Annuncio aggiornato il 27/10/2025
Descrizione

riferimento: EK-121385102

CAPANNONE IN VENDITA A MANERBIO

Proponiamo in vendita capannone situato in zona artigianale a Manerbio (BS), in posizione strategica e facilmente accessibile.
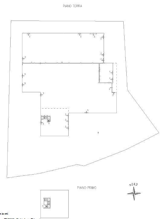
L’immobile sorge su un lotto di circa 5.000 mq ed è composto da una superficie commerciale di circa 2.175 mq, con un’ampia area esterna di pertinenza di circa 2.850 mq, ideale per manovra mezzi pesanti, carico/scarico o parcheggio.
Il capannone si presta a diversi utilizzi con la possibilità di frazionamento in più unità immobiliari, rendendolo una soluzione flessibile anche per investitori o aziende con necessità modulabili.
PREZZO TRATTABILE
Caratteristiche
Contratto
Vendita
Tipologia
Capannone
Superficie
2.176 m²
Locali
3 locali
Piano
2 piani: Piano terra, 1°
Piani edificio
2
Disponibilità
Libero
Altezza capannone
4 m
Altre caratteristiche
  • Docce
  • Mensa
  • Passo carrabile
  • Recintato
  • Spogliatoio
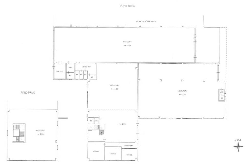
Dettaglio superficie

Capannone

Piano
Piano terra
Superficie
575,5 m²
Coefficiente
100%
Tipo superficie
Principale
Sup. commerciale
575,5 m²

Capannone

Piano
Piano terra
Superficie
1.091,2 m²
Coefficiente
100%
Tipo superficie
Principale
Sup. commerciale
1.091,2 m²

Ufficio o Studio

Piano
Piano terra
Superficie
87,9 m²
Coefficiente
100%
Tipo superficie
Principale
Sup. commerciale
87,9 m²

Ufficio o Studio

Piano
Piano terra
Superficie
149,1 m²
Coefficiente
100%
Tipo superficie
Principale
Sup. commerciale
149,1 m²

Ufficio o Studio

Piano
Piano terra
Superficie
67,8 m²
Coefficiente
100%
Tipo superficie
Principale
Sup. commerciale
67,8 m²

Capannone

Piano
1
Superficie
204,3 m²
Coefficiente
100%
Tipo superficie
Principale
Sup. commerciale
204,3 m²
Informazioni sul prezzo
Prezzo
€ 550.000
Prezzo al m²
253 €/m²
New
Dettaglio dei costi
Spese condominio
Nessuna spesa condominiale
Efficienza energetica
  • Stato

    Buono / Abitabile
  • Riscaldamento

    Autonomo, ad aria, alimentato a gas
Planimetria
Scopri ogni angolo dell'immobile
+12
Opzioni aggiuntive

Contatta l'inserzionista

Oppure