Villa unifamiliare via Annibal Caro 9, Trezzano sul Naviglio

€ 380.000
4
148 m²
1
Lusso
No
Terrazzo
Cantina

Nota

Annuncio aggiornato il 19/09/2025
Descrizione

riferimento: V18

Villa singola su unico livello.

trezzano sul naviglio zona boschetto -

in tranquilla zona residenziale, proponiamo in vendita villa singola disposta su unico livello oltre al piano seminterrato e mansardato.

l' immobile e' cosi' composto:

piano rialzato
ingresso, salone doppio con camino e affaccio sul patio (verandabile), ampia cucina abitabile, bagnetto di servizio, due camere e bagno padronale finestrato con vasca.

tramite la scala a chiocciola nella cameretta si accede al piano mansardato finestrato, dove abbiamo un' altra camera.

piano seminterrato
taverna/locale lavanderia e box doppio.

completa la proprieta' il giardino di circa 250 mq -

immobile in buone condizioni:
pavimentazione ceramica -
infissi in alluminio con doppi vetri -
porta blindata -
possibilita' di ricreare lo studio al piano rialzato, ripristinando la cucina com' era inzialmente.
Caratteristiche
Tipologia
Villa unifamiliare | Intera proprietà | Classe immobile signorile
Contratto
Vendita
Piano
Seminterrato, piano rialzato
Piani edificio
3
Ascensore
No
Superficie
148 m²
Locali
4
Camere da letto
2
Cucina
Cucina abitabile
Bagni
1
Arredato
No
Balcone
No
Terrazzo
Box, posti auto
2 in box privato/box in garage, 1 in parcheggio/garage comune
Riscaldamento
Autonomo, a radiatori, alimentato a gas
Altre caratteristiche
  • Caminetto
  • Esposizione interna
  • Infissi esterni in doppio vetro / metallo
  • Mansarda
  • Porta blindata
  • Taverna
  • Impianto tv singolo
Dettaglio superficie

Abitazione

Piano
Piano rialzato
Superficie
132,0 m²
Coefficiente
100%
Tipo superficie
Principale
Sup. commerciale
132,0 m²

Box o garage

Piano
Seminterrato
Superficie
32,0 m²
Coefficiente
50%
Tipo superficie
Principale
Sup. commerciale
16,0 m²
Informazioni sul prezzo
Prezzo
€ 380.000
Prezzo al m²
2.568 €/m²
New
Efficienza energetica

Consumo di energia

279.37 kWh/m² annoE

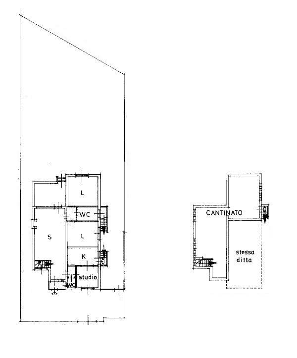
Planimetria
planimetria abitazione
planimetria box
Scopri ogni angolo dell'immobile
+17
Mutuo
%
Durata del mutuo

Rata da € 1.129 al mese

€ 114.000 (30%)

€ 266.000 (70%)

Vuoi sapere che mutuo puoi richiedere?

Opzioni aggiuntive

Contatta l'inserzionista

Oppure