Capannone in Vendita

€ 610.000
5+
585 m²
3

Nota

Annuncio aggiornato il 10/09/2025
Descrizione

riferimento: S698

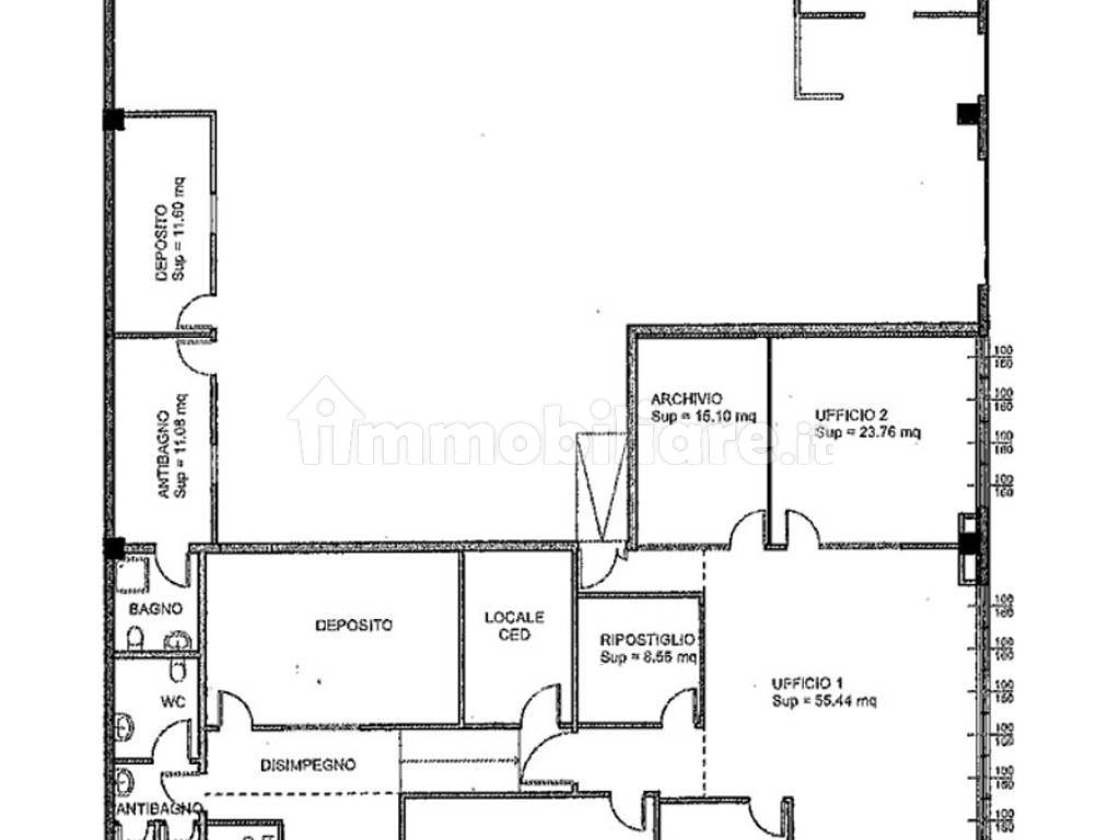
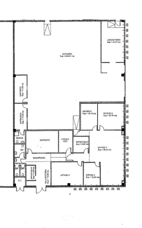
Capannone con uffici

Lurago Marinone, zona industriale, vicinanza ingresso autostradale di Lomazzo Sud, VENDESI un luminoso capannone di circa 330 mq con h. 4.00 mt circa, dotato di ingresso e ribalta indipendenti per il carico scarico, basculante motorizzato e riscaldamento autonomo (Robur), oltre a 255 mq. circa di moderni uffici e nr. 8-10 posti auto interni, uno dei quali dotato di ricarica per auto elettriche.
Questi immobili versatili offrono una combinazione ideale di spazi ufficio collegati con il magazzino sullo stesso piano, dotati di accessi indipendenti per una gestione ottimale dell’attività.

Il magazzino (330 mq.) ha una saracinesca elettrificata per facilitare le operazioni di carico scarico oltre ad un’area chiusa con griglia di ferro e soppalco per una migliore organizzazione dello spazio. Vi sono due aree ufficio aggiuntive all’interno del magazzino per una gestione integrata delle attività. Un bagno di servizio ed un ripostiglio per una maggiore funzionalità.

Gli uffici (255 mq.) sono distribuiti in 9 ambienti ben strutturati dotati di una spaziosa sala riunioni con proiettore ed impianto per videoconferenze, ideale per meeting produttivi presentazioni di successo.
Vi è inoltre una comoda sala di attesa per accogliere i clienti. Un open space luminoso con ampie finestre garantiscono una luce ottimale otre ai tre bagni (uomo, donna e disabili) per il confort di tutti.
Completano la proprietà un locale Rack per le infrastrutture IT.

Immobili ideali per piccole-medie aziende che necessitano di ambienti di lavoro moderni e funzionali.
Per info e visite 347 7686218

650.000,00 €
Caratteristiche
Contratto
Vendita
Tipologia
Capannone
Superficie
585 m²
Locali
5+ locali, 3 bagni - uno o più adatto a persone disabili
Piano
Piano terra, con accesso disabili
Piani edificio
1
Box, posti auto
9 in parcheggio/garage comune
Disponibilità
Libero
Altezza capannone
4 m
Altezza sottotrave
4 m
Banchine di carico
1
Altre caratteristiche
  • Docce
  • Impianto di allarme
  • Passo carrabile
  • Reception
  • Recintato
  • Spogliatoio
  • Vigilanza CCTV
Dettaglio superficie

Capannone

Piano
Piano terra
Superficie
330,0 m²
Coefficiente
100%
Tipo superficie
Principale
Sup. commerciale
330,0 m²

Ufficio o Studio

Piano
Piano terra
Superficie
255,0 m²
Coefficiente
100%
Tipo superficie
Principale
Sup. commerciale
255,0 m²
Informazioni sul prezzo
Prezzo
€ 610.000
Prezzo al m²
1.043 €/m²
New
Dettaglio dei costi
Spese condominio
Nessuna spesa condominiale
Efficienza energetica
  • Anno di costruzione

    2000
  • Stato

    Ottimo / Ristrutturato
  • Riscaldamento

    Autonomo, ad aria, alimentato a pompa di calore
  • Climatizzatore

    Autonomo, freddo/caldo
Planimetria
Plan
Scopri ogni angolo dell'immobile
+26
Opzioni aggiuntive

Contatta l'inserzionista

Oppure