Terreno edificabile in Vendita

€ 100.000
921 m²

Nota

Annuncio aggiornato il 30/10/2025
Descrizione

riferimento: 30721110-74

Terreno Edificabile in vendita a San Pietro Clarenza

Sei alla ricerca di un'opportunità di investimento immobiliare unica e redditizia? Allora sei nel posto giusto! Remax ,azienda leader nel settore immobiliare,presenta in vendita un terreno edificabile con progetto approvato per la realizzazione di tre appartavilla con giardino, situato in una zona residenziale esclusiva e tranquilla.

Caratteristiche Principali:

- Terreno edificabile con progetto approvato per tre appartavilla con giardino
- Zona residenziale esclusiva e tranquilla
- Progetto già approvato dalle autorità competenti
- Possibilità di costruire appartavilla di lusso con giardino privato
- Investimento immobiliare redditizio e sicuro

Dettagli del Progetto:

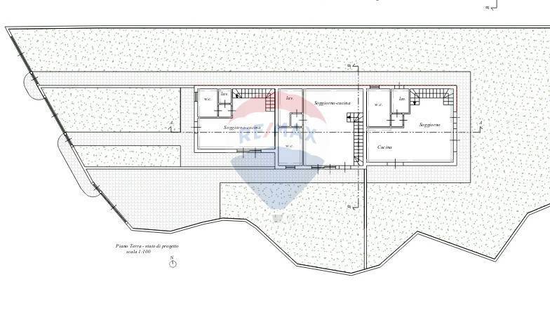
- Tre appartavilla con giardino privato, ognuno distribuito su due livelli
- Superficie totale di ogni appartamento: 105 mq circa
- Progetto di architettura moderna e design esclusivo
- Spazi interni funzionali e ben distribuiti
- Giardini privati per ogni appartavilla
- Possibilità di personalizzare gli interni e gli esterni secondo le tue esigenze

Distribuzione degli Appartamenti:

- Ogni appartavilla è distribuito su due livelli, con:
- Piano terra: ingresso, soggiorno cucina e giardino privato
- Piano primo: Due camere da letto, bagni e balcone

Vantaggi:

- Investimento immobiliare sicuro e redditizio
- Opportunità di creare un patrimonio immobiliare solido e duraturo
- Zona residenziale con facile accesso ai servizi e alle infrastrutture
-Possibilità di cambiare il progetto con altre opzioni(villa singola, bifamiliare..ecc)
Contattaci per Maggiori Informazioni:

Se sei interessato a questa opportunità di investimento immobiliare unica, non esitare a contattarci per maggiori informazioni. Saremo felici di fornirti tutti i dettagli necessari e di aiutarti a realizzare il tuo progetto immobiliare.
Se vuoi saperne di più, puoi parlare con Giovanni Gabriele Donato.

Di solito risponde entro 12 ore

Caratteristiche
Contratto
Vendita
Tipologia
Terreno edificabile
Superficie
921 m²
Disponibilità
Libero
Informazioni sul prezzo
Prezzo
€ 100.000
Prezzo al m²
109 €/m²
New
Scopri ogni angolo dell'immobile
+15
Inserzionista

Giovanni Gabriele Donato

scheda agenzia
Opzioni aggiuntive

Contatta l'inserzionista

Oppure

Giovanni Gabriele Donato