Casa colonica Strada di Frara , 34, Paradigna - Centro Torri, Parma

€ 80.000
5+
300 m²
3
No
Cantina

Nota

Annuncio aggiornato il 07/07/2025
Descrizione

riferimento: SP 545

AFFASCINANTE CASA DI CAMPAGNA DA RISTRUTTURARE

8 KM DA PARMA: Scoprite un'opportunità unica di possedere una storica casa colonica situata nel cuore della tranquillità rurale di Vicomero sotto il Comnue di Parma. Questo rustico di ben 300 mq è circondato da ampi terreni privati e accessori adiacenti, offrendo un'incredibile possibilità per chi desidera realizzare la propria oasi personale in campagna.

L'immobile presenta spazi generosi che possono essere trasformati secondo le vostre esigenze, mantenendo intatto il fascino originale con soffitti a volta realizzati in mattone a faccia vista. La struttura richiede lavori di ristrutturazione completa, permettendovi così di personalizzarla completamente e farla diventare la vostra residenza dei sogni.

La posizione strategica offre non solo privacy ma anche facile accesso ai servizi locali e alle bellezze naturali circostanti. Immersa nella natura, questa proprietà rappresenta l'ideale rifugio per famiglie o investitori alla ricerca di un progetto unico.

Non perdete l'occasione di visitare questo angolo incantevole della nostra campagna.
Contattateci per vere maggiori informazioni o per organizzare una visita presso l'immobile.
Caratteristiche
Tipologia
Casa colonica | Intera proprietà | Classe immobile media
Contratto
Vendita
Piano
Piano terra
Piani edificio
2
Ascensore
No
Superficie
300 m²
Locali
5+
Camere da letto
4
Cucina
Cucina angolo cottura
Bagni
3
Arredato
No
Balcone
No
Terrazzo
No
Altre caratteristiche
  • Esposizione esterna
  • Infissi esterni in vetro / legno
  • Impianto tv singolo
Dettaglio superficie

Abitazione

Piano
Piano terra
Superficie
300,0 m²
Coefficiente
100%
Tipo superficie
Principale
Sup. commerciale
300,0 m²
Informazioni sul prezzo
Prezzo
€ 80.000
Prezzo al m²
267 €/m²
New
Dettaglio dei costi
Spese condominio
Nessuna spesa condominiale
Efficienza energetica

Consumo di energia

≥ 3,51 kWh/m² annoG

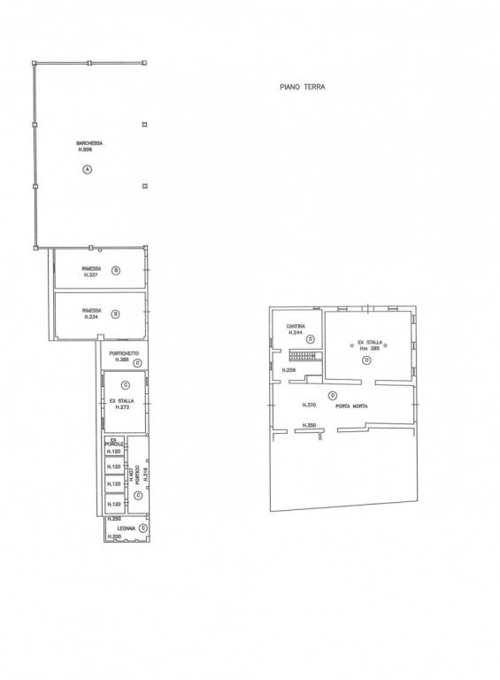
Planimetria
casa
plani 4
planimetrie 2
planimetrie 3
Scopri ogni angolo dell'immobile
+17
Mutuo
%
Durata del mutuo

Rata da € 238 al mese

€ 24.000 (30%)

€ 56.000 (70%)

Vuoi sapere che mutuo puoi richiedere?

Opzioni aggiuntive

Contatta l'inserzionista

Oppure