Locale commerciale in Vendita

Prezzo su richiesta
1
2 m²
1
T

Nota

Annuncio aggiornato il 26/06/2025
Descrizione

riferimento: EK-121632922

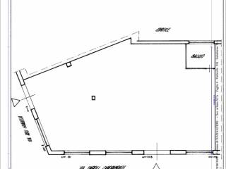
LOCALE COMMERCIALE - MIANO/SECONDIGLIANO

Proponiamo in vendita, (tra Via Miano e Rione Don Guanella), locale commerciale con più vetrine fronte strada, adatto a vari usi ed ampia quadratura, in buono stato.
PER INFORMAZIONI SUL PREZZO DELL'IMMOBILE CHIAMARE IN AGENZIA: 0815432405
Se vuoi saperne di più, puoi parlare con Francesco Piscopo.
Caratteristiche
Contratto
Vendita
Tipologia
Locale commerciale
Superficie
2 m²
Locali
1 locale, 1 bagno, doppio ingresso
Piano
Piano terra
Piani edificio
5
Altezza soffitti
3 m
Vetrine
6 vetrine su strada
Altre caratteristiche
  • Impianto di allarme
  • Luci d'emergenza
  • Posizione ad angolo
  • Saracinesche automatiche
  • Saracinesche manuali
  • Uscita emergenza
Dettaglio superficie

Negozio - Locale commerciale

Piano
Piano terra
Superficie
2,0 m²
Coefficiente
100%
Tipo superficie
Principale
Sup. commerciale
2,0 m²
Informazioni sul prezzo
Prezzo
Prezzo su richiesta
Dettaglio dei costi
Spese condominio
€ 50/mese
Efficienza energetica
  • Anno di costruzione

    1960
  • Stato

    Buono / Abitabile
  • Climatizzatore

    Autonomo
Opzioni aggiuntive

Contatta l'inserzionista