Appartamento nuovo, piano terra, Soverato Marina, Soverato

Prezzo su richiesta
5
121 m²
2
T
No

Nota

Annuncio aggiornato il 31/10/2025
Descrizione

riferimento: A-UI4 - 1

APPARTAMENTI SOVERATO

Nuovissimi appartamenti (oggi in corso di costruzione) al piano terra con giardino, compresi in un complesso residenziale immerso nel verde ma vicinissimi al centro abitato raggiungibile anche a piedi. Contesto signorile.

1. L'unità immobiliare ha una superficie lorda di 120 mq in cui andranno a realizzarsi un salone con zona pranzo, cucina, una camera padronale con bagno en suite e cabina armadio, disimpegno, una seconda camera da letto con cabina armadio e un secondo bagno finestrato.
All'esterno due aree, una occupata da un portico di 38 mq e un giardino di 125 mq e l'altra da un posto auto privato e da un percorso pedonale.

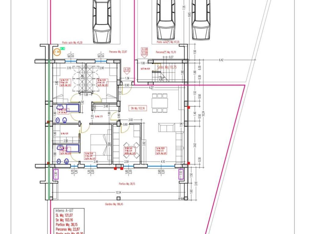
2. L'unità immobiliare ha una superficie lorda di 121 mq in cui andranno a realizzarsi un salone con zona pranzo, cucina, una camera padronale con bagno en suite finestrato e cabina armadio, disimpegno da cui accedere a due camere da letto e secondo bagno finestrato.
All'esterno due aree una occupata da un portico di 38 mq e un giardino di 186 mq e l'altra da un posto auto privato e da un percorso pedonale.

Le unità immobiliari saranno realizzate secondo le più recenti norme per l'efficientamento energetico e con materiali di pregio.
Possibili modifiche in corso d'opera.
Classe Energetica: A4
Caratteristiche
Tipologia
Appartamento | Intera proprietà | Classe immobile signorile
Contratto
Vendita
Piano
Piano terra
Ascensore
No
Superficie
121 m² | commerciale 133,9 m²
Locali
5
Camere da letto
2
Cucina
Cucina abitabile
Bagni
2
Arredato
No
Balcone
No
Terrazzo
No
Riscaldamento
Autonomo
Dettaglio superficie

Abitazione

Piano
Piano terra
Superficie
121,0 m²
Coefficiente
100%
Tipo superficie
Principale
Sup. commerciale
121,0 m²

Altro

Piano
Piano terra
Superficie
38,0 m²
Coefficiente
34%
Tipo superficie
Accessoria
Sup. commerciale
12,9 m²
Informazioni sul prezzo
Prezzo
Prezzo su richiesta
Efficienza energetica

Consumo di energia

A4

Scopri ogni angolo dell'immobile
+7
Opzioni aggiuntive

Contatta l'inserzionista