Capannone in Affitto

€ 1.650/mese
200 m²
2

Nota

Zenso

Prestiti online e veloci

Confronta le offerte in 1 minuto

Annuncio aggiornato il 02/07/2025
Descrizione

riferimento: P/0283

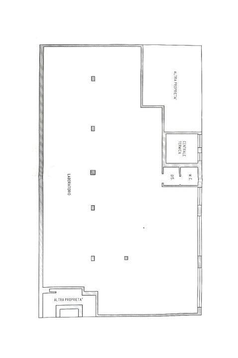
vinci - rif p/0283 - spicchio - 700 metri dal ponte di sovigliana - capannone artigianale di totali mq 200, adatto a lavorazione artigianale o magazzino. esternamente, in area parcheggio adiacente, quattro posti auto. l'immobile si presenta in ottimo stato di manutenzione. superficie open space con due vani ad uso ufficio e spogliatoio, oltre doppi servizi. riscaldamento e raffrescamento, sistema antincendio, impianto aspirazione fumi. posizione interessante per la vicinanza ai classici servizi. contesto riservato in strada chiusa. - subito disponibile -
classe energetica g; ipe 160,00 euro 1650,00
Se vuoi saperne di più, puoi parlare con Simone Francioni.
Caratteristiche
Contratto
Affitto
Tipologia
Capannone
Superficie
200 m²
Locali
2 bagni
Piano
Piano terra
Disponibilità
Libero
Altezza capannone
3 m
Altezza sottotrave
3 m
Altre caratteristiche
  • Passo carrabile
  • Spogliatoio
Dettaglio superficie

Capannone

Piano
Piano terra
Superficie
200,0 m²
Coefficiente
100%
Tipo superficie
Principale
Sup. commerciale
200,0 m²
Informazioni sul prezzo
Prezzo
€ 1.650/mese
Prezzo al m²
8 €/m²
New
Dettaglio dei costi
Spese condominio
Nessuna spesa condominiale
Cauzione
€ 3.300
Efficienza energetica

Consumo di energia

160 kWh/m² annoG

Planimetria
Virtual tour
Scopri ogni angolo dell'immobile
+17
Opzioni aggiuntive

Contatta l'inserzionista

Oppure