Capannone in Vendita

€ 850.000
5+
650 m²
2

Nota

Annuncio aggiornato il 02/07/2025
Descrizione

riferimento: 61083918

COSA SAPERE SULL'IMMOBILE:
Proponiamo capannone in vendita a Sarzana.
DESCRIZIONE E PARTICOLARITA':
- Categoria D8
- Altezza 7.20 metri
- Altezza zona magazzino 2.90
- 2 uffici
- 2 bagni con antibagno
- Spogliatoio con docce
- Area esterna 290 mq UBICAZIONE E CONTESTO: L'immobile si trova in una piccola zona industriale vicino al centro e poco distante da tutta la zona commerciale della città. Vicino alla stazione ferroviaria e il casello autostradale e alle grandi strade di percorrenza che portano alle zone limitrofe. Sarzana è un comune italiano di 21 771 abitanti della provincia della Spezia in Liguria.
Se vuoi saperne di più, puoi parlare con Studio Industriale La Spezia Affiliato Tecnocasa:.

Di solito risponde entro 2 giorni

Caratteristiche
Contratto
Vendita
Tipologia
Capannone
Superficie
650 m²
Locali
5+ locali, 2 bagni
Piano
Seminterrato, con accesso disabili
Piani edificio
1
Box, posti auto
10 in box privato/box in garage, 10 in parcheggio/garage comune
Altezza capannone
7,2 m
Altre caratteristiche
  • Docce
  • Recintato
  • Spogliatoio
Dettaglio superficie

Capannone

Piano
Seminterrato
Superficie
650,0 m²
Coefficiente
100%
Tipo superficie
Principale
Sup. commerciale
650,0 m²
Informazioni sul prezzo
Prezzo
€ 850.000
Prezzo al m²
1.308 €/m²
New
Efficienza energetica

Consumo di energia

100 kWh/m² annoG

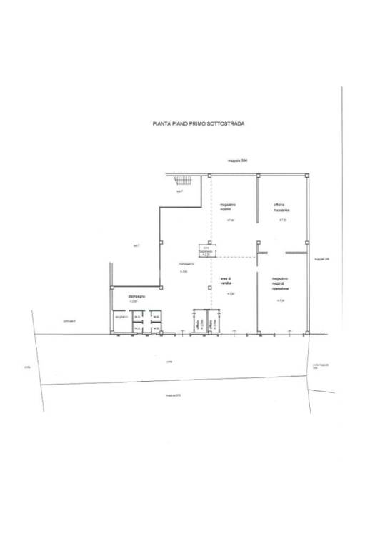
Planimetria
Planimetria
Scopri ogni angolo dell'immobile
+8
Inserzionista

Studio Industriale La Spezia Affiliato Tecnocasa:

scheda agenzia
Opzioni aggiuntive

Contatta l'inserzionista

Oppure

Studio Industriale La Spezia Affiliato Tecnocasa: