Casale Strada Vicinale Buffatelle, Ruffano

€ 35.000
5
805 m²
1
No
Terrazzo

Nota

Annuncio aggiornato il 02/07/2025
Descrizione

riferimento: 179

Casale in collina a Casarano

In agro di Ruffano ma nelle più immediate vicinanze della periferia di Casarano, proponiamo in vendita un casale antico da ristrutturare.
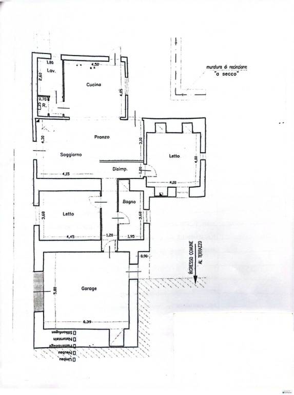
La superficie totale dell' immobile è di circa 150 mq, diviso tra antiche volte a "botte" e volte piane, più cisterna e raccolta acque nere, la superficie esterna del terreno è invece di circa 2500mq, l' immobile risulta essere molto antico e molto caratteristico in una posizione piuttosto tranquilla ed in altura, inoltre alleghiamo planimetria di un eventuale progetto che potrebbe essere sviluppato in futuro su quest' immobile che offre un vasto potenziale, ossia cucina, soggiorno/pranzo disimpegno, due camere da letto, lavanderia un servizio, garage e possibilità di accesso al terrazzo di proprietà ed un vastissimo giardino.
L' IMMOBILE RESTA VISITABILE ANCHE LA DOMENICA PREVIO APPUNTAMENTO TELEFONICO O MAIL.
Se vuoi saperne di più, puoi parlare con Christian Chiarillo.
Caratteristiche
Tipologia
Casale | Intera proprietà | Classe immobile economica
Contratto
Vendita
Piano
Piano terra
Piani edificio
1
Ascensore
No
Superficie
805 m²
Locali
5
Camere da letto
2
Cucina
Cucina abitabile
Bagni
1
Arredato
No
Balcone
No
Terrazzo
Box, posti auto
2 in box privato/box in garage, 2 in parcheggio/garage comune
Altre caratteristiche
  • Armadio a muro
  • Caminetto
  • Esposizione interna
  • Infissi esterni in vetro / legno
  • Impianto tv centralizzato
Dettaglio superficie

Abitazione

Piano
Piano terra
Superficie
145,0 m²
Coefficiente
100%
Tipo superficie
Principale
Sup. commerciale
145,0 m²

Terreno

Piano
Piano terra
Superficie
2.640,0 m²
Coefficiente
25%
Tipo superficie
Principale
Sup. commerciale
660,0 m²
Informazioni sul prezzo
Prezzo
€ 35.000
Prezzo al m²
43 €/m²
New
Dettaglio dei costi
Spese condominio
Nessuna spesa condominiale
Efficienza energetica
  • Anno di costruzione

    1940
  • Stato

    Da ristrutturare
  • Certificazione energetica

    Esente
Planimetria
CamScanner 02-07-25 19.25 1
CamScanner 02-07-25 19.27 1
Scopri ogni angolo dell'immobile
+24
Inserzionista
scheda agenzia
Opzioni aggiuntive

Contatta l'inserzionista

Oppure