Villa a schiera 4 locali, buono stato, Castiglione, Villa Inferno, Montaletto, Cervia

€ 289.000
4
156 m²
2
No
Balcone
Arredato

Nota

Annuncio aggiornato il 05/07/2025
Descrizione

riferimento: VE 307

VILLA A SCHIERA CON 3 CAMERE, GARAGE E GIARDINO

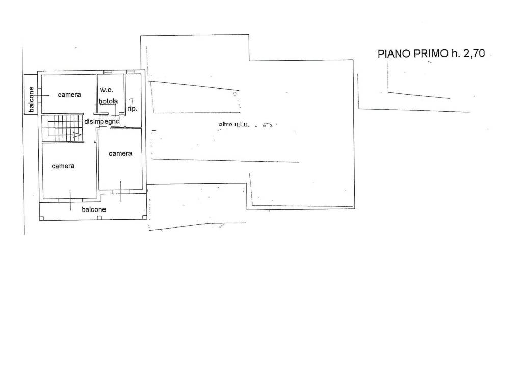
VILLA INFERNO - VILLA A SCHIERA CON 3 CAMERE, GARAGE E GIARDINO. In zona residenziale, si vende villa bifamiliare composta da ingresso su ampia zona giorno con cucina e soggiorno open space, bagno, piccolo ripostiglio nel sottoscala, al piano superiore 3 camere da letto di cui 2 matrimoniali con accesso al balcone, una doppia con balcone privato, un ripostiglio e un secondo bagno. L'immobile è dotato di riscaldamento autonomo, A/C, garage, un giardino di 40 mq e un sottotetto ad uso ripostiglio. Prezzo richiesto: €289.000 - PER INFO: EMAIL: info@agenziazoffoli.it, TEL. 0544-995261, viale Matteotti 90, Milano Marittima
Se vuoi saperne di più, puoi parlare con AGENZIA ZOFFOLI.
Caratteristiche
Tipologia
Villa a schiera | Intera proprietà | Classe immobile media
Contratto
Vendita
Piano
Piano terra, 1
Piani edificio
3
Ascensore
No
Superficie
156 m²
Locali
4
Camere da letto
3
Cucina
Cucina a vista
Bagni
2
Arredato
Balcone
Terrazzo
No
Box, posti auto
1 in box privato/box in garage, 1 in parcheggio/garage comune
Riscaldamento
Autonomo, a radiatori, alimentato a gas
Climatizzazione
Autonomo, freddo/caldo
Altre caratteristiche
  • Esposizione esterna
  • Infissi esterni in doppio vetro / legno
  • Mansarda
  • Impianto tv singolo
Dettaglio superficie

Abitazione

Piano
Piano terra
Superficie
70,0 m²
Coefficiente
100%
Tipo superficie
Principale
Sup. commerciale
70,0 m²

Abitazione

Piano
1
Superficie
70,0 m²
Coefficiente
100%
Tipo superficie
Principale
Sup. commerciale
70,0 m²

Balcone

Piano
1
Superficie
15,0 m²
Coefficiente
30%
Tipo superficie
Principale
Sup. commerciale
4,5 m²

Giardino

Piano
Piano terra
Superficie
40,0 m²
Coefficiente
10%
Tipo superficie
Principale
Sup. commerciale
4,0 m²

Box o garage

Piano
Piano terra
Superficie
15,0 m²
Coefficiente
50%
Tipo superficie
Principale
Sup. commerciale
7,5 m²
Informazioni sul prezzo
Prezzo
€ 289.000
Prezzo al m²
1.853 €/m²
New
Dettaglio dei costi
Spese condominio
Nessuna spesa condominiale
Efficienza energetica
  • Anno di costruzione

    1980
  • Stato

    Buono / Abitabile
  • Riscaldamento

    Autonomo, a radiatori, alimentato a gas
  • Climatizzatore

    Autonomo, freddo/caldo
Planimetria
PLANIMETRIA PT
PLANIMETRIA 1P
PLANIMETRIA SOTTOTETTO
Scopri ogni angolo dell'immobile
+14
Mutuo
%
Durata del mutuo

Rata da € 858 al mese

€ 86.700 (30%)

€ 202.300 (70%)

Vuoi sapere che mutuo puoi richiedere?

Opzioni aggiuntive

Contatta l'inserzionista

Oppure