Villa unifamiliare via MAZZINI, Montiglio, Montiglio Monferrato

€ 320.000
5+
432 m²
3
No
Balcone
Terrazzo
Parzialmente Arredato
Cantina

Nota

Annuncio aggiornato il 29/10/2025
Descrizione

riferimento: CASALE PANORAMICO SUI VIGNETI DEL MONFERRATO

CASALE PANORAMICO SUI VIGNETI DEL MONFERRATO

Rif: CASALE PANORAMICO SUI VIGNETI DEL MONFERRATO - MONTIGLIO MONFERRATO - ASTI

Incantevole casale ristrutturato con vista panoramica situato sulla cima di una splendida collina nel cuore di Montiglio Monferrato, un antico borgo in provincia di Asti, questo affascinante casale offre uno scenario unico: domina la Valle Versa, regalando una vista mozzafiato sulle colline patrimonio dell’UNESCO.
Questa proprietà rappresenta un’opportunità unica, un vero gioiello di charme e tranquillità senza rinunciare alla comodità dei servizi sotto casa.
La proprietà offre ampi spazi, caratteristiche autentiche e un’atmosfera di pace e serenità, rendendola ideale come seconda casa, struttura ricettiva come bed & breakfast, o semplicemente come rifugio di charme.
Un altro valore aggiunto di questa casa, è dato dagli spazi esterni: un ampio cortile frontale, protetto da un imponente castagno secolare che offre ombra naturale nei mesi più caldi, e un antico portico in muratura, perfetto per essere vissuto come salotto esterno, zona pranzo o per essere trasformato in una dépandance.
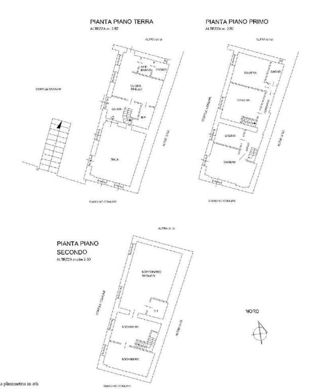
L’abitazione principale comprende al piano terra una cucina abitabile, un ampio soggiorno con vista panoramica e un bagno ristrutturato.
Al primo piano si trovano tre camere doppie, tra cui una matrimoniale con bagno privato, oltre a un secondo bagno dedicato alle altre stanze.
Una caratteristica davvero speciale è la stanza dell’astrofilo nel sottotetto: un angolo dedicato all’osservazione delle stelle, con una sezione del tetto apribile elettricamente per godersi il cielo notturno come in un osservatorio astronomico.
La seconda unità abitativa, con portone di accesso dal centro del paese, dispone di una cucina, un soggiorno e un bagno al piano terra, con due camere doppie e un balcone al primo piano.
Completano la proprietà un giardino adibito a frutteto, ideale per chi desidera coltivare o godere della natura, un'ampia cantina e un garage.
Il borgo di Montiglio Monferrato è ricco di storia: in cima al colle si erge il castello originario del XIII secolo, poi ricostruito nel XV, e nel parco si trova la cappella romanica di Sant’Andrea, con il più vasto ciclo di affreschi trecenteschi del Piemonte. A pochi passi si trova anche la Pieve Romanica di San Lorenzo, nota per le sue sculture affascinanti.
Con circa 1.500 abitanti, Montiglio offre negozi e servizi di ogni genere, senza la necessità di utilizzare l’auto, in un contesto naturale e storico di grande valore.
Se sogni una residenza storica immersa in un paesaggio da sogno, questa è la soluzione perfetta: una casa ricca di charme, nel centro del paese, con una vista spettacolare sulle colline del Monferrato, patrimonio dell’umanità UNESCO.

Per maggiori informazioni contattare:
tel. e whatsapp 011.561.35.35 - info@edilcase.it oppure
visita il nostro sito www.edilcase.it e scopri tutte le nostre opportunità immobiliari.
Caratteristiche
Tipologia
Villa unifamiliare | Intera proprietà | Classe immobile signorile
Contratto
Vendita
Piano
Piano terra
Piani edificio
1
Ascensore
No
Superficie
432 m²
Locali
5+
Camere da letto
5
Cucina
Cucina abitabile
Bagni
3
Arredato
Parzialmente Arredato
Balcone
Terrazzo
Box, posti auto
1 in box privato/box in garage
Riscaldamento
Autonomo, a radiatori, alimentato a metano
Altre caratteristiche
  • Esposizione doppia
  • Infissi esterni in vetro / legno
  • Impianto tv centralizzato
Informazioni sul prezzo
Prezzo
€ 320.000
Prezzo al m²
741 €/m²
New
Dettaglio dei costi
Spese condominio
Nessuna spesa condominiale
Efficienza energetica
  • Anno di costruzione

    1950
  • Stato

    Buono / Abitabile
  • Riscaldamento

    Autonomo, a radiatori, alimentato a metano
  • Certificazione energetica

    In attesa di certificazione
Planimetria
planimetria
planimetria
planimetria
Scopri ogni angolo dell'immobile
+62
Mutuo
%
Durata del mutuo

Rata da € 950 al mese

€ 96.000 (30%)

€ 224.000 (70%)

Vuoi sapere che mutuo puoi richiedere?

Opzioni aggiuntive

Contatta l'inserzionista

Oppure