Terreno edificabile in Vendita

€ 95.000
514 m²

Nota

Annuncio aggiornato il 04/12/2025
Descrizione

riferimento: LA-TER1

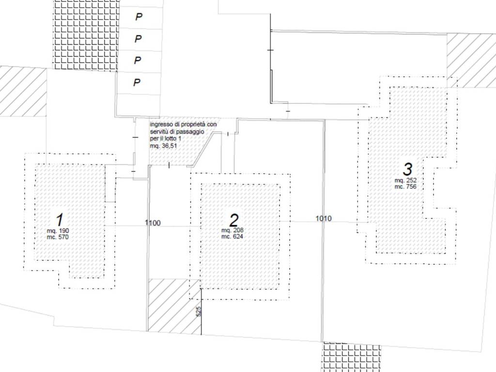
Vendesi terreno edificabile di 514 mq con progetto approvato

Proponiamo in vendita un lotto edificabile di 514 mq ideale per la realizzazione di una villa singola in un contesto tranquillo e residenziale. Il volume edificabile di 570 mc consente di progettare una casa comoda e indipendente, perfetta per la famiglia che desidera qualità e privacy. Il terreno è pronto per partire subito grazie alla formula “chiavi in mano”, con progetto già approvato, oneri di urbanizzazione primaria interamente saldati e allacciamenti predisposti per acqua, gas, energia elettrica e fibra ottica. Nessuna spesa imprevista, nessun pensiero aggiuntivo: solo la libertà di costruire la casa che hai sempre voluto in un ambiente sereno e ben servito. Contattaci per maggiori dettagli o per fissare una visita.
Se vuoi saperne di più, puoi parlare con Mauro Campi.
Caratteristiche
Contratto
Vendita
Tipologia
Terreno edificabile
Superficie
514 m²
Disponibilità
Libero
Qualificazione urbanistica
Singola unità
Dislivello terreno
Leggero
Area edificabile
570 m²
Accesso in strada/servitù di passaggio
In strada asfaltata
Altre caratteristiche
  • Allaccio acqua
  • Allaccio elettricità
  • Allaccio fogne
  • Allaccio gas
  • Recintato
Informazioni sul prezzo
Prezzo
€ 95.000
Prezzo al m²
185 €/m²
New
Virtual tour
Scopri ogni angolo dell'immobile
+13
Opzioni aggiuntive

Contatta l'inserzionista

Oppure