Bilocale via Cesare Acquati 12, Cormano

€ 179.000
2
54 m²
1
T
No
Balcone
Arredato

Nota

Annuncio aggiornato il 17/11/2025
Descrizione

riferimento: 61086421

Eleganza e comfort in ongi stagione. Bilocale con veranda e affaccio sul giardino condominiale.
In un contesto residenziale tranquillo e ben curato, proponiamo in vendita un raffinato bilocale di 56 mq, pensato per chi desidera un ambiente accogliente, funzionale e impreziosito da spazi esterni vivibili tutto l’anno.
L’ingresso si apre su un luminoso soggiorno, che dialoga armoniosamente con la veranda coperta, affacciata sul verde del giardino condominiale: un ambiente versatile e riservato, ideale come zona relax, pranzo o studio, perfettamente godibile in ogni stagione.
Il cucinotto separato e finestrato offre praticità e luminosità, mentre la camera da letto matrimoniale è impreziosita da un balconcino privato, che regala un piacevole sfogo esterno.
Il bagno con doccia presenta linee pulite e funzionali, e un comodo ripostiglio cieco offre la possibilità di realizzare un secondo bagno, aggiungendo valore e comfort alla proprietà.
Due posti auto (uno condominiale e uno di proprietà) e l'intero arredo completano la soluzione.
Un appartamento ideale per chi cerca tranquillità, spazi ben distribuiti e dettagli curati, perfetto come abitazione principale o come investimento di pregio.
Per informazioni e visite non esitare a contattarci.
Se vuoi saperne di più, puoi parlare con Savino Simone ..

Di solito risponde entro 1 giorno

Caratteristiche
Tipologia
Appartamento | Intera proprietà | Classe immobile economica
Contratto
Vendita
Piano
Piano terra
Piani edificio
6
Ascensore
No
Superficie
54 m²
Locali
2
Camere da letto
1
Cucina
Cucina cucinotto
Bagni
1
Arredato
Balcone
Terrazzo
No
Riscaldamento
Centralizzato, a radiatori, alimentato a metano
Climatizzazione
Autonomo
Informazioni sul prezzo
Prezzo
€ 179.000
Prezzo al m²
3.315 €/m²
New
Dettaglio dei costi
Spese condominio
€ 192/mese
Efficienza energetica

Consumo di energia

390.74 kWh/m² annoG

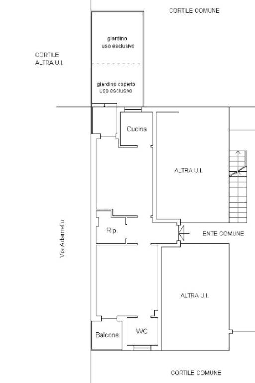
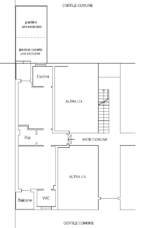
Planimetria
Planimetria
Planimetria sensibile
Virtual tour
Scopri ogni angolo dell'immobile
+18
Opzioni aggiuntive

Contatta l'inserzionista

Oppure