Bilocale via 25 Aprile 90, Centro, Montichiari

€ 189.000
2
95 m²
2
No
Balcone
Cantina

Nota

Annuncio aggiornato il 04/12/2025
Descrizione

riferimento: 61088391

COSA SAPERE SULLA CASA
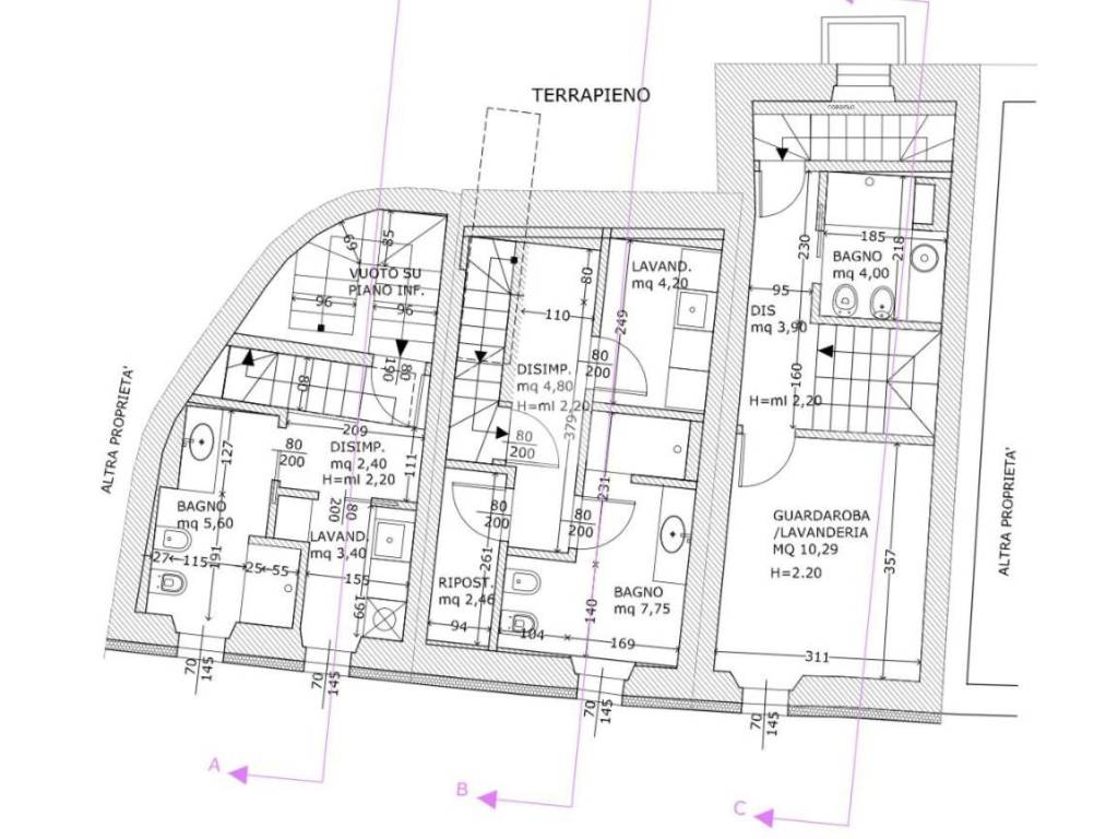
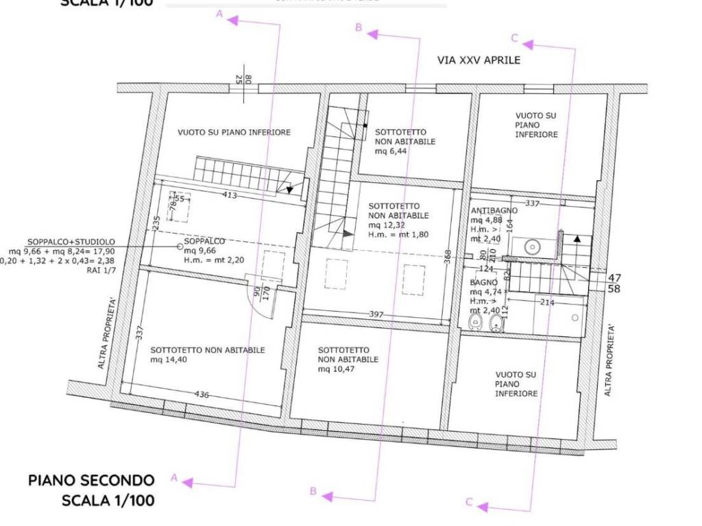
Porzione di casa su 4 livelli - Soggiorno/Cucina - Camera da letto - Sudio - Doppi Servizi - Lavanderia - Autorimessa - Soppalco.
- Pavimentazione zona giorno in piastrelle o gres porcellanato, nei bagni in piastrelle in ceramica o gres porcellanato, nelle camere da letto in listelli di rovere, nei garage in ceramica o pavimentazione industriale con finitura a spolvero di quarzo.
- Serramenti in PVC
- Sanitari in ceramica bianca sospesi, piatto doccia in acrilico
-Attacco lavatrice nel bagno principale, attacco lavastoviglie vicino al piano cottura
-Nessun impianto per il gas, riscaldamento in pompa di calore, piano cottura ad induzione
-Pannelli fotovoltaici
Consegna prevista per Maggio/Giugno 2026.
Se vuoi saperne di più, puoi parlare con Rosy Gentile ..

Di solito risponde entro 2 giorni

Caratteristiche
Tipologia
Appartamento | Intera proprietà | Classe immobile media
Contratto
Vendita
Piani edificio
3
Ascensore
No
Superficie
95 m²
Locali
2
Camere da letto
1
Cucina
Cucina semi abitabile
Bagni
2
Arredato
No
Balcone
Terrazzo
No
Box, posti auto
1 in box privato/box in garage
Riscaldamento
Autonomo, ad aria
Climatizzazione
Autonomo
Informazioni sul prezzo
Prezzo
€ 189.000
Prezzo al m²
1.989 €/m²
New
Dettaglio dei costi
Spese condominio
Nessuna spesa condominiale
Efficienza energetica

Consumo di energia

A2

Planimetria
PLANIMETRIA
PLANIMETRIA
Virtual tour
Scopri ogni angolo dell'immobile
+5
Opzioni aggiuntive

Contatta l'inserzionista

Oppure