Trilocale via Italia 121, Centro, Muggiò

€ 159.000
3
75 m²
1
No
Balcone
Cantina

Nota

Annuncio aggiornato il 17/09/2025
Descrizione

riferimento: 159MUGGIO'

VIA ITALIA - 3 LOCALI LIBERO SUBITO

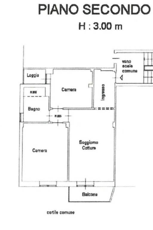
VIA ITALIA - In zona servita dai principali servizi, in uno stabile anni ’60 proponiamo in vendita un ottimo appartamento 3 locali di 75 mq, posto al secondo piano senza ascensore, ristrutturato nel 2019 e così composto: ingresso nel disimpegno, soggiorno con cucina a vista e balcone, bagno con doccia, ampia camera matrimoniale e cameretta con balcone loggiato.

Completa la proprietà una cantina al piano interrato.

Ottime condizioni, impianto d’aria condizionata, infissi in pvc con doppi vetri.

Libero subito!

AD € 159.000

PER INFORMAZIONI O APPUNTAMENTI CONTATTARE LA GRUPPO CASA BRUGHERIO ALLO 039/882722
Se vuoi saperne di più, puoi parlare con Emanuele Imbesi.
Caratteristiche
Tipologia
Appartamento | Intera proprietà | Classe immobile media
Contratto
Vendita
Piano
Interrato (-1), 2
Piani edificio
4
Ascensore
No
Superficie
75 m²
Locali
3
Camere da letto
2
Cucina
Cucina a vista
Bagni
1
Arredato
No
Balcone
Terrazzo
No
Riscaldamento
Centralizzato, a radiatori, alimentato a metano
Climatizzazione
Autonomo, freddo/caldo
Altre caratteristiche
  • Esposizione doppia
  • Fibra ottica
  • Infissi esterni in doppio vetro / PVC
  • Porta blindata
  • Cancello elettrico
  • Impianto tv centralizzato
Dettaglio superficie

Abitazione

Piano
2
Superficie
75,0 m²
Coefficiente
100%
Tipo superficie
Principale
Sup. commerciale
75,0 m²

Cantina

Piano
Interrato (-1)
Superficie
1,0 m²
Coefficiente
25%
Tipo superficie
Principale
Sup. commerciale
0,3 m²
Informazioni sul prezzo
Prezzo
€ 159.000
Prezzo al m²
2.120 €/m²
New
Dettaglio dei costi
Spese condominio
€ 133/mese
Efficienza energetica

Consumo di energia

135.39 kWh/m² annoE

Planimetria
Planim 159Muggiò
Virtual tour
Scopri ogni angolo dell'immobile
+8
Mutuo
%
Durata del mutuo

Rata da € 472 al mese

€ 47.700 (30%)

€ 111.300 (70%)

Vuoi sapere che mutuo puoi richiedere?

Opzioni aggiuntive

Contatta l'inserzionista

Oppure