Terratetto unifamiliare vicolo 12, Centro, Montemagno

€ 200.000
5+
317 m²
3
No
Balcone
Arredato
Cantina

Nota

Annuncio aggiornato il 03/12/2025
Descrizione

riferimento: EK-122116102

Residenza Baronale con Origini Medievali

Nel cuore del Monferrato astigiano, patrimonio UNESCO, è in vendita una prestigiosa dimora storica appartenuta per secoli a una nobile famiglia baronale locale, discendente diretta dei feudatari che ospitarono l’Imperatore Federico Barbarossa durante i suoi passaggi nella regione nel XII secolo.
L’immobile, situato nel borgo antico di Montemagno Monferrato, si distingue per la presenza dello stemma originario dei baroni — raffigurante un cervo nobile al cospetto di un albero, simbolo araldico della caccia imperiale e della fedeltà al Sacro Romano Impero.
La tenuta conserva strutture architettoniche risalenti all’epoca medievale, con successive trasformazioni settecentesche che ne fanno oggi una residenza elegante e suggestiva, con vista panoramica sulle colline vitate del Monferrato. L’immobile, un tempo tenuta estiva della casata, è stato abitato fino a tempi recenti dalla discendente diretta dei baroni originari.
L’atmosfera che si respira è quella delle grandi dimore storiche italiane: portali in pietra, balconi in ferro battuto decorati, sale con travature antiche e scorci storici unici. Lo stemma in facciata è un testimone araldico raro, che ne certifica l’identità nobiliare.
Nel corso dei secoli, Montemagno Monferrato ha giurato fedeltà ai duchi di Savoia già a partire dal XV secolo, passando definitivamente sotto il loro controllo con l’evolversi delle vicende politiche del Monferrato.
In epoca più recente, la dimora si è legata in modo diretto alla famiglia reale italiana: il Conte Giorgio Carlo Calvi di Bergolo (1887–1977), ultimo signore del castello, fu marito della Principessa Jolanda di Savoia, sorella del Re Vittorio Emanuele III.
Questa unione portò frequentazioni anche reali presso la residenza.

OTTIMO INVESTIMENTO CON POTENZIALE TURISTICO
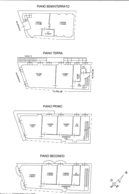
L’immobile dispone di sei camere da letto, che, a seguito di una ristrutturazione accurata, permetterebbero di trasformare la proprietà in un affascinante B&B storico o struttura ricettiva di charme, valorizzando la sua storia e posizione strategica nel cuore del Monferrato.
Un’opportunità unica per investitori interessati a progetti turistici di qualità, nel rispetto e nella valorizzazione del patrimonio culturale locale.
Se vuoi saperne di più, puoi parlare con Vendocasa Asti Est.
Caratteristiche
Tipologia
Terratetto unifamiliare | Intera proprietà | Classe immobile media
Contratto
Vendita
Piano
Piano terra
Piani edificio
3
Ascensore
No
Superficie
317 m²
Locali
5+
Camere da letto
6
Cucina
Cucina cucinotto
Bagni
3
Arredato
Balcone
Terrazzo
No
Riscaldamento
Autonomo, a stufa, alimentato a legna
Altre caratteristiche
  • Armadio a muro
  • Caminetto
  • Esposizione doppia
  • Infissi esterni in vetro / legno
Dettaglio superficie

Abitazione

Piano
Piano terra
Superficie
317,0 m²
Coefficiente
100%
Tipo superficie
Principale
Sup. commerciale
317,0 m²
Informazioni sul prezzo
Prezzo
€ 200.000
Prezzo al m²
631 €/m²
New
Dettaglio dei costi
Spese condominio
Nessuna spesa condominiale
Efficienza energetica

Consumo di energia

≥ 175 kWh/m² annoG

Planimetria
plani 1
Virtual tour
Scopri ogni angolo dell'immobile
+56
Mutuo
%
Durata del mutuo

Rata da € 594 al mese

€ 60.000 (30%)

€ 140.000 (70%)

Vuoi sapere che mutuo puoi richiedere?

Opzioni aggiuntive

Contatta l'inserzionista

Oppure