



Nota
riferimento: EK-122117600
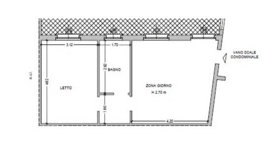
MARIANO AL BREMBRO BILOCALE ARREDATO CON CANTINA E BOX
Abitazione
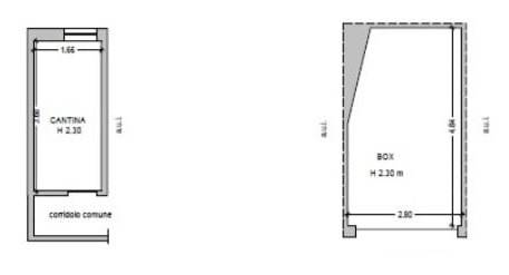
Cantina
Box o garage
Anno di costruzione
1980Stato
Buono / AbitabileRiscaldamento
Autonomo, a radiatori, alimentato a metanoClimatizzatore
Autonomo, freddo