Terreno edificabile in Vendita

€ 155.000
1.610 m²

Nota

Annuncio aggiornato il 21/07/2025
Descrizione

riferimento: EK-122161066

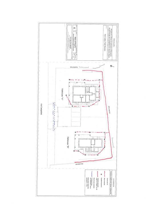
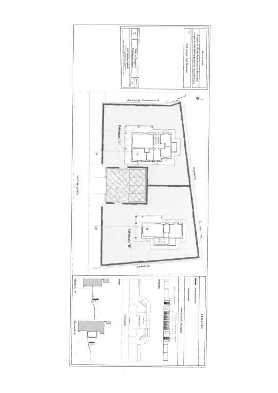
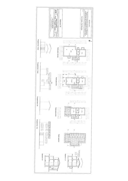
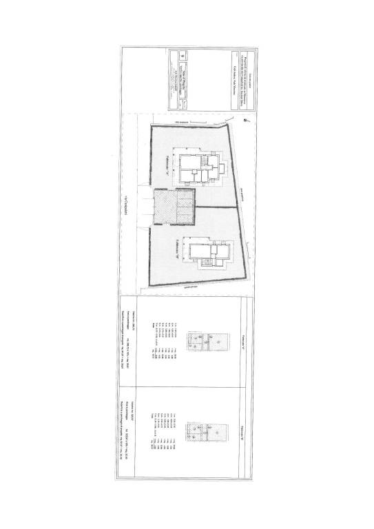
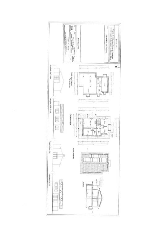
NOSTRA ESCLUSIVA! TERRENO EDIFICABILE CON PROGETTO DI DUE UN

NOSTRA ESCLUSIVA! TERRENO EDIFICABILE CON PROGETTO DI DUE UNITÁ ABITATIVE. In zona centralissima nella frazione di Stiava, proponiamo in vendita terreno che offre un'opportunità unica per realizzare un progetto residenziale, grazie alla presenza di un progetto già approvato per la realizzazione di due unità immobiliari, una di 110 mq e una di 120 mq. Accesso stradale garantito e con tutti i servizi nelle vicinanze. Nel progetto vengono specificati gli oneri di urbanizzazione che non sono compresi nel prezzo di richesta del terreno. Possibilità di divisione in lotto A e lotto B come da progetto considerando. Soluzione ideale per investimento o per due nuclei familiari!ontattaci al n. 0584/1788762 o anche su WhatsApp al 349/1448422 Seguici su facebook, cercaci come Barner Massarosa !
Caratteristiche
Contratto
Vendita
Tipologia
Terreno edificabile
Superficie
1.610 m²
Disponibilità
Libero
Qualificazione urbanistica
Unità multiple
Altezza massima edificabile
230 m
Area edificabile
230 m²
Accesso in strada/servitù di passaggio
In strada asfaltata
Informazioni sul prezzo
Prezzo
€ 155.000
Prezzo al m²
96 €/m²
New
Planimetria
doc01422820250721104310 1
doc01422820250721104310 2
doc01422820250721104310 8
doc01422820250721104310 10
doc01422820250721104310 3
doc01422820250721104310 4
doc01422820250721104310 7
doc01422820250721104310 5
doc01422820250721104310 6
Scopri ogni angolo dell'immobile
+8
Opzioni aggiuntive

Contatta l'inserzionista

Oppure