Capannone in Vendita

€ 920.000
2
1.050 m²
3

Nota

Annuncio aggiornato il 02/12/2025
Descrizione

riferimento: Smart 159

Capannone in vendita a Lonato del Garda

A Lonato del Garda proponiamo in vendita un capannone, perfetto come investimento. L’immobile è attualmente locato, garantendo da subito una rendita stabile.
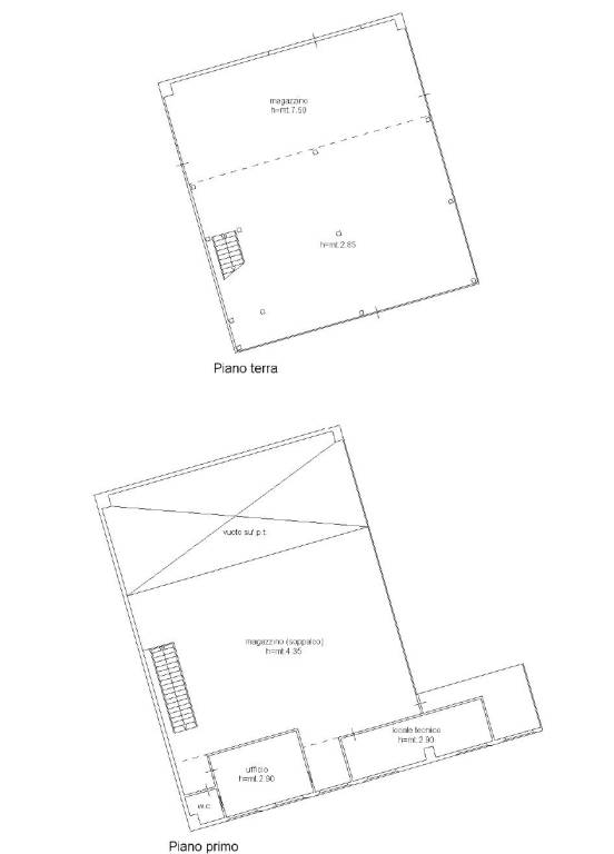
La struttura, moderna e funzionale, si sviluppa al piano terra su una superficie di circa 800 mq e comprende un pratico soppalco con ufficio. Collegato all'immobile vi è un palazzina al primo piano dove si trovano ulteriori 150 mq dedicati agli uffici, realizzati con finiture di qualità e serramenti in alluminio di ultima generazione, che assicurano efficienza energetica e comfort.
Il capannone è completamente circondato da un ampio piazzale con area esterna di circa 1000 mq, che offre ottime possibilità di manovra, parcheggio e stoccaggio. Un valore aggiunto è rappresentato dall’area esterna edificabile, che consente eventuali ampliamenti o sviluppi futuri.
Un’occasione unica per chi cerca un investimento sicuro in una zona dinamica del basso Garda, dove la domanda per immobili industriali e direzionali è in costante crescita.
Se vuoi saperne di più, puoi parlare con Egidio Albanese.
Caratteristiche
Contratto
Vendita
Tipologia
Capannone
Superficie
1.050 m²
Locali
2 locali, 3 bagni - uno o più adatto a persone disabili
Piano
2 piani: Piano terra, 1°, con accesso disabili
Piani edificio
2
Box, posti auto
2 in parcheggio/garage comune
Disponibilità
Libero
Altezza capannone
7,5 m
Altezza sottotrave
6,5 m
Altre caratteristiche
  • Impianto di allarme
  • Passo carrabile
  • Reception
  • Recintato
  • Spogliatoio
Dettaglio superficie

Capannone

Piano
Piano terra
Superficie
800,0 m²
Coefficiente
100%
Tipo superficie
Principale
Sup. commerciale
800,0 m²

Ufficio o Studio

Piano
1
Superficie
150,0 m²
Coefficiente
100%
Tipo superficie
Principale
Sup. commerciale
150,0 m²

Piazzale

Piano
Piano terra
Superficie
1.000,0 m²
Coefficiente
10%
Tipo superficie
Principale
Sup. commerciale
100,0 m²
Informazioni sul prezzo
Prezzo
€ 920.000
Prezzo al m²
876 €/m²
New
Dettaglio dei costi
Spese condominio
Nessuna spesa condominiale
Efficienza energetica

Consumo di energia

≥ 3,51 kWh/m² annoG

Planimetria
PLN_194266244_1_page-0001
Scopri ogni angolo dell'immobile
+19
Inserzionista
scheda agenzia
Opzioni aggiuntive

Contatta l'inserzionista

Oppure