Terreno edificabile in Vendita

€ 85.000
130 m²

Nota

Annuncio aggiornato il 08/10/2025
Descrizione

riferimento: EK-122224130

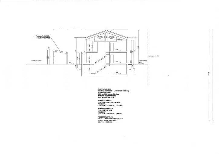
Terreno edificabile con progetto approvato

Easy Immobiliare San Sperate propone in vendita in centro storico a selargius, rudere su terreno edificabile di 130mq con progetto pronto ed approvato per la costruzione di una villetta a schiera di 150mq piu depandance di 30mq.
Il terreno gode di doppio affaccio su due vie.
Da progetto la villeta si sviluppa su tre livelli: seminterrato,piano terra e primo piano.
dall'ampio ingresso su strada accediamo al parcheggio privato con ampia area di manovra. Una volta superata la veranda d'ingresso ci troviamo al piano terra dove si sviluppa la zona giorno con ampio soggiorno,cucina abitabile,bagno e giardino interno collegato anche all'eventuale depandance di 30mq soppalcabile. Tramite la rampa di scale si arriva al piano primo con zona notte composta da due stanze padronali con bagno anch'esse soppalcabili. A completare l'immobile un seminterrato con ampio open space e bagno.
Caratteristiche
Contratto
Vendita
Tipologia
Terreno edificabile
Superficie
130 m²
Disponibilità
Libero
Qualificazione urbanistica
Singola unità
Area edificabile
180 m²
Accesso in strada/servitù di passaggio
In strada asfaltata
Altre caratteristiche
  • Allaccio acqua
  • Allaccio elettricità
  • Allaccio fogne
  • Allaccio gas
  • Illuminazione pubblica
  • Recintato
Informazioni sul prezzo
Prezzo
€ 85.000
Prezzo al m²
654 €/m²
New
Planimetria
1753282349913-e0ba544a-c44a-4a5e-8dbb-28dfad261fa1
20250723103414
20250723103357
Scopri ogni angolo dell'immobile
+12
Opzioni aggiuntive

Contatta l'inserzionista

Oppure